Az értékesítő:
Mihócza Zsolt
+36 30 686 1118

Eladó lakás Kecskemét, 82 000 000 Ft, 65 négyzetméter

82 000 000 Ft
lakás, 65 négyzetméter
Építőanyag:
Tégla
Egész szobák:
3
Ingatlan állapota:
Azonosító:
11604664
Értékesítés típusa:
eladó
Ingatlan típusa:
lakás
Település:
Kecskemét
Alapterület:
65
Ár:
82 000 000 Ft
Emelet:
4. emelet
Fűtés jellege:
Cirkó
Építési év:
50 évesnél régebbi
Erkély:
Van
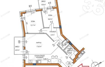
Kecskeméten, a Balaton utcában, 2015-ös építésű, szigetelt társasházban lévő, 65 m2-es, nappali +2 szobás, II. emeleti, 2 erkélyes lakás eladó garázzsal, saját tárolóval!! Jellemzők: - 2015-ös építésű, kedvelt lakópark! - homlokzat szigetelt - beépített konyhabútor gépekkel - előszoba szekrény - parkettás szobák +tágas nappali - nagyon kedvező rezsi költség - gáz-cirkó fűtés - 2 db erkély + 8 m2 - klíma - műanyag nyílászárók redőnnyel, szúnyoghálóval - földszintről induló lift - mélygarázs, további 6.000.000 Ft - saját tároló további 4.000.000Ft - alacsony rezsi Figyelem! Az adatlap megbízónktól kapott adatok alapján készült. Pontosságáért felelősséget nem tudunk vállalni! Amennyiben a hirdetés felkeltette az érdeklődését és kérdése lenne a lakással kapcsolatban, akkor kérem forduljon hozzám bizalommal! Az iroda legfrissebb, aktuális kínálatát a HOUSE36 saját weboldalán találja!
https://elado.lakas.hu/elado/lakas/kecskemet/82-millio-ft;65-negyzetmeter;3-szoba;tegla-epitesu/11604664