Az értékesítő:
Némethné Zsuzsa
+36 70 412 3861

Eladó lakás Debrecen, Belváros, 62 900 000 Ft, 29 négyzetméter

62 900 000 Ft
lakás, 29 négyzetméter
Építőanyag:
Tégla
Egész szobák:
1
Ingatlan állapota:
Kitűnő
Azonosító:
11575152
Értékesítés típusa:
eladó
Ingatlan típusa:
lakás
Település:
Debrecen
Alapterület:
29
Ár:
62 900 000 Ft
Fűtés jellege:
Egyéb
Kilátás:
kertre néző
Erkély:
Van
Kertkapcsolat:
Nincs
Kocsibeálló:
Nincs
Tároló:
Nincs
Lift:
Van
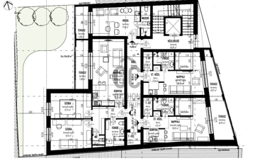
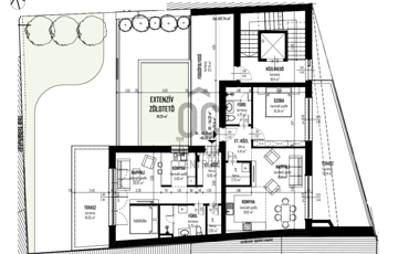
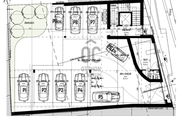
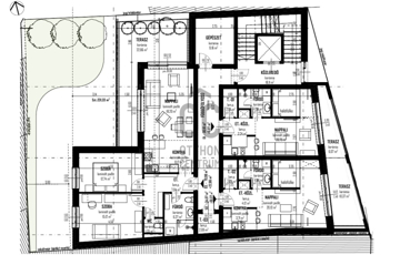
II. emelet 3/A. lakás 29 nm + 21 nm terasz: A garzonlakás nem osztott, hanem önálló lakás: - nappali hálórész leválaszthatósággal - konyha étkezővel - fürdőszoba WC - terasz - előszoba. Ideális egyedülállónak, egyetemistának, aki kis fenntartási költséggel, mégis a belváros összes előnyével keres új építésű otthont! Befektetőknek, akik ismerik a garzonlakás összes előnyét! Projekt bemutatása Belváros szívében, Nagytemplomtól 500 méterre épül a 8 lakásos, liftes társasház. Az értékesítés elkezdődött!!!! Földszinten 1 db üzlethelyiség és fedett/nyitott gépjárműtárolók (8MFt + ÁFA), melyek megvásárlása nem szükségszerű! Az I. és II. emeletén 3 - 3 lakás, melyek garzon (nappali + hálófülke) és nappali + 2 hálós kialakításuak. A III. emeleten 2 lakás, melyből az egyik garzon, míg a másik nappali + 1 hálós. A modern és ízléses külsőhöz egyedi elosztású, élhető terekkel rendelkező, napfényes lakásokat terveztek, házközpontú kondenzációs gázkazánnal (fan-coil) fűtés-hűtés, hőszigetelt nyílászárókkal, minőségi szaniterekkel. A beruházó és kivitelező múltja és referenciái, garancia a minőségi és egyben megbízható projektnek! KÖZPONTI ELHELYEZKEDÉS, KIVÁLÓ KÖZLEKEDÉS: A Hal köz párszáz méterre kávézókkal, éttermekkel, teraszokkal várja a vendégeket. Villamos és buszközlekedés csak séta távolságra, mellyel a város bármelyik pontjára könnyen eljuthatunk. A kiváló infrastruktúrának köszönhetően az ingatlanok értékállóak. Ideális mindazok számára, akik szeretnek a belvárosban élni és az ezzel járó számos előnyt élvezni! A lakások - akár külföldi - bérlők igényeit is kielégítő, könnyen bérbe adható, ízléses apartmanokká alakíthatóak! Válasszon az alábbi lehetőségek közül, ha Önnek fontos a belváros nyújtotta kedvező adottság, illetve az értékállóságot keresi jövőjét illetően! Várható átadás: 2026. III. negyedév. Hitelügyintézést banki kollégánk teljeskörűen és ingyen bonyolítja Önnek irodánkban, de akár otthonában is!
https://elado.lakas.hu/elado/lakas/debrecen/63-millio-ft;29-negyzetmeter;1-szoba;tegla-epitesu/11575152