Az értékesítő:
Somogyi Nikoletta
+36 70 605 0504

Eladó lakás Budapest IV. ker, 73 500 000 Ft, 71 négyzetméter

73 500 000 Ft
lakás, 71 négyzetméter
Építőanyag:
Panel
Egész szobák:
3
Komfort fokozat:
Összkomfort
Ingatlan állapota:
Azonosító:
11569338
Értékesítés típusa:
eladó
Ingatlan típusa:
lakás
Település:
Budapest IV. ker
Alapterület:
71
Ár:
73 500 000 Ft
Tulajdonviszony:
Saját
Emelet:
4. emelet
Fűtés jellege:
Távfűtés
Kilátás:
panorámás
Építési év:
21-50 éves
Erkély:
Van
Pince:
Nincs
Tároló:
Nincs
Lift:
Van
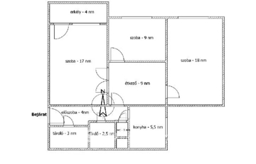
Újpesten az Árpád üzletház közelében , Horváth cukrászda, M3 metró stb...eladó egy tágas világos 71nm-es,3 szoba hallos, ERKÉLYES, PANORÁMÁS távfűtéses, 4.emeleti panellakás. Közös költség 24eft a felújítási alappal együtt. Távfűtés 15eft. A társasház 1985-ben épült, karbantartott. Az utcán ingyenes a parkolás. 20E busz, Spar, bankok parkok a közelben. Irányár 73.5mft 70//605 //0504
https://elado.lakas.hu/elado/lakas/budapest-iv-ker/74-millio-ft;71-negyzetmeter;3-szoba;panel-epitesu/11569338