Eladó lakás Zamárdi 144 190 000 Ft

Leírás

Prémium lakásokat kínálunk megvételre Zamárdi szívében, a Balaton partjától mindössze 100 m távolságra.

A lakások terasszal, kertkapcsolattal, napozó terasszal, autó beállóval + autótöltési lehetőséggel, tárolóval épülnek.
A házban 8 személyes felvonó működik, az épület akadálymentesített.
Az udvar parkosított.

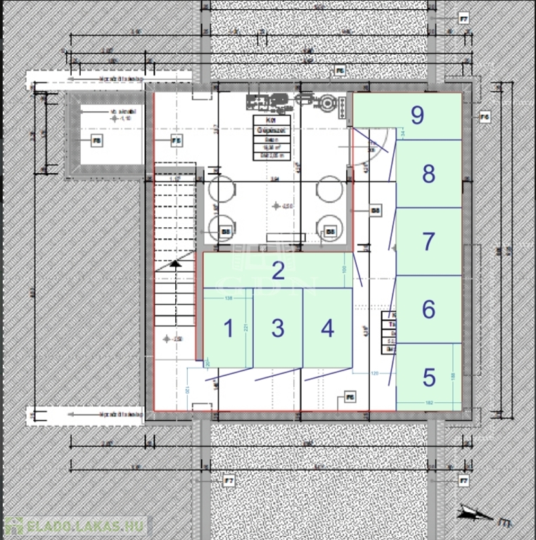
Az ingatlanban 9 db lakás épül.

Földszint 1-es lakás beosztása és vételára:

- Nappali 20,88 nm,
- Konyha+étkező 10,77 nm,
- Gardrób 7,66 nm,
- Szoba 10,92 nm,
- Szoba 10,92 nm,
- Fürdőszoba 4,38 nm,
- WC 1,18 nm,
-------------------------------
Lakás nettó alapterülete: 66,71 nm
+ Terasz 12 nm,
+ Saját kertrész 104 nm,
+ Tároló 3,24 nm,
+ Napozó terasz 10,32 nm,
+ Autó beálló 20,47 nm,
--------------------------------
Összesen: 144.190.000 Ft

Az ingatlan ideális választás mindazok számára, akik modern, energiatakarékos otthont, illetve hosszú távon is értékálló befektetést keresnek a Balaton közvetlen közelében.

Főbb jellemzők:
• Letisztult, modern megjelenés, magas színvonalú kivitelezés
• A+++ energiaosztály – alacsony rezsiköltség, fenntartható működés
• Már csak 7 apartman, különböző méretekben, átgondolt alaprajzokkal

Műszaki tartalom:
- vasbeton tartószerkezet, külső falak 25 cm SILKA tégla+ 30 cm Multipor szigetelés, belső válaszfalak 12 cm,
- 3 rétegű fehér nyílászáró + elektromos alumínium redőny+
szunyogháló ( távolról vezérelhető)
- többponton záródó bejárati ajtók + elegáns kilincsgarnitúra,
- minden lakás saját főmérővel rendelkezik 1x 32 A kapacitással,
- TV+ LAN csatlakozó, riasztó előkészítés,
- Napelemekkel működő hőszivattyú rendszere biztosítja a hűtést-fűtést
( fan-coil), melegvíz ellátást, közös területek, felvonó áramellátását,
elektromos autó töltést,
- egyedi hőmennyiségmérők + programozható szobatermosztátok,
- a lakások előkészítve vannak okosotthon rendszerek teljes skálájára.

Birtokbaadás 2 hónap

Irodánk 30 éves szakmai tapasztalattal áll ügyfelei rendelkezésére!

Várom szíves megkeresését!

Lakás részletei

Ár: 144 190 000 Ft
Méret: 90 négyzetméter
Azonosító: 11595644
Irodai azonosító: 386482
Cím: Balatonhoz közel
Emelet: Földszint
Építőanyag: Tégla
Fűtés jellege: Hőszivattyú
Ingatlan állapota: Kitűnő
Komfort fokozat: Összkomfort
Építési év: Új építésű
Tulajdonviszony: Saját
Kilátás: udvari
Egész szobák: 3

Egyéb jellemzők

  • Erkély
  • Garázs
  • Lift
  • Pince
  • Tároló

Térkép


Így keressen eladó lakást négy egyszerű lépésben. Csupán 2 perc, kötelezettségek nélkül!

Szűkítse a eladó lakások
listáját
Válassza ki a megfelelő
eladó lakást
Írjon a hirdetőnek
Várjon a visszahívásra