Eladó lakás Zalaegerszeg 50 440 000 Ft

Leírás

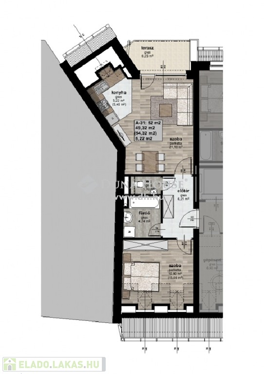
Zalaegerszegen, a Vizslapark közelében 9 lakásos, modern, liftes, energiatakarékos társasház épül magas műszaki tartalommal, igényes kivitelezésben, korszerű alaprajzokkal, 2026 év. 1. negyedévi átadással.

Az épülő társasházban 9 lakás, 3 üzlethelyiség és 17 garázs került kialakításra. Jelenleg még 4 lakás és 1 üzlethelyiség elérhető a projektben.

A telek elhelyezkedés kiváló, közel van a belvároshoz, a közelben található számos bolt, számos üzlet, gyógyszertár, iskola és sportolási lehetőség.
A társasház hátsó udvarában garázsok kerülnek kialakításra, hőszigetelt, elektromos garázskapuval.

A lakások 5% Áfa mellett vásárolhatók meg, részletekről érdeklődjön személyesen az irodánkban. Készséggel állok rendelkezésre valamennyi kérdésben a vásárlással valamint a CSOK és hitelfelvételi lehetőségekkel kapcsolatban.

Főbb műszaki paraméterek:
- tégla építésű
- 20 cm hőszigetelés
- külső nyílászárók alumínium, 3 rétegű üvegezéssel
- fűtés: központi gázkazán (hőszivattyúval kiegészítve), egyedi mérőkkel ellátva
- hidegburkolatos helyiségekben padlófűtés, egyéb helyiségben radiátoros fűtés
- A+ energetikai besorolás
- lift
- 3 rétegű fehér műanyag nyílászáró
- redőny: fehér alumínium

Használja ki Ön is az új építésű ingatlanok előnyeit! Gazdaságos fenntartási költségek, saját igények, elképzelések megvalósíthatósága!

Referencia szám: PR084100/LK/20328

Lakás részletei

Ár: 50 440 000 Ft
Méret: 52 négyzetméter
Azonosító: 11381847
Irodai azonosító: PR084100/LK/20328-4632495
Emelet: 3. emelet
Építőanyag: Tégla
Fűtés jellege: Hőszivattyú
Ingatlan állapota: Épülő
Komfort fokozat: Összkomfort
Építési év: Új építésű
Kilátás: udvari
Egész szobák: 2

Egyéb jellemzők

  • Erkély
  • Garázs
  • Lift

Térkép


Így keressen eladó lakást négy egyszerű lépésben. Csupán 2 perc, kötelezettségek nélkül!

Szűkítse a eladó lakások
listáját
Válassza ki a megfelelő
eladó lakást
Írjon a hirdetőnek
Várjon a visszahívásra