Eladó lakás Veresegyház 69 990 000 Ft

Leírás

Felújítás alatt álló, kertkapcsolatos lakások eladók Veresegyházon!

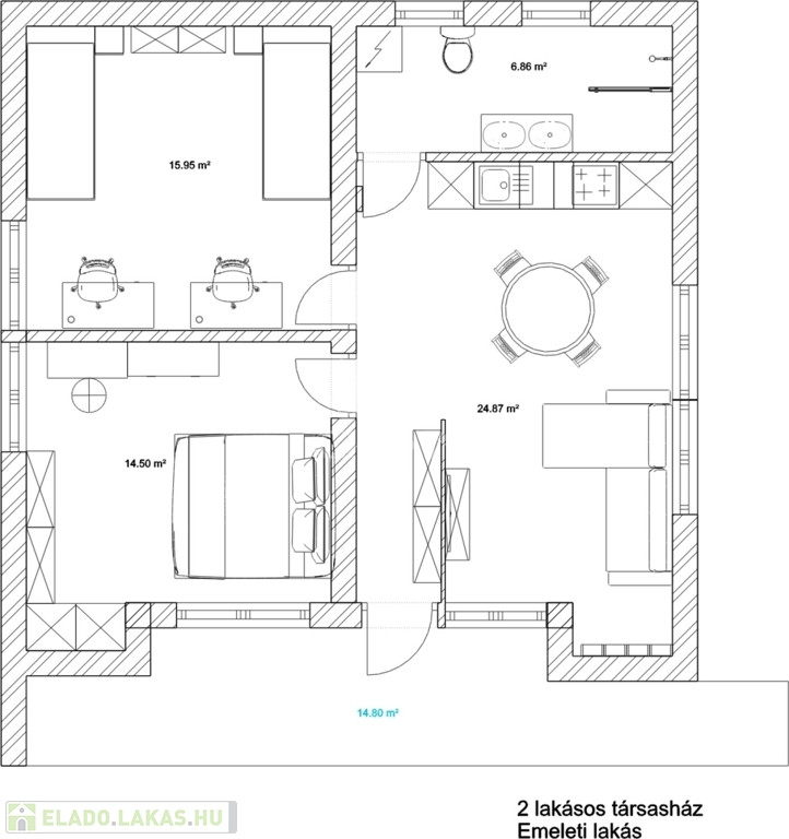
Eladásra kínálok egy kétlakásos társasház földszinti és emeleti lakását Veresegyházon, a vasúti megálló közelében, csendes, jól megközelíthető környezetben.

Az ingatlan egy 400 m²-es telken helyezkedik el. A ház teljes körű felújítás alatt áll:
✔ új tetőszerkezet
✔ 10 cm külső hőszigetelés
✔ modern, energia hatékony műszaki megoldások

Várható költözés: 2026. április

Műszaki tartalom:

• hőszivattyús rendszer
• teljes padlófűtés
• klíma minden lakásban
• korszerű, energia hatékony kialakítás

Kertkapcsolat:

Mindkét lakáshoz kb. 200 m² saját kertrész tartozik.
A kerítés a ház sarkával egy vonalba kerül kialakításra, így autóbeállási lehetőség biztosított telken belül.

A lakások a ház két oldalán helyezkednek el, teljesen külön bejárattal, ügyvéd általi megosztással.

Amit kínálunk:

✔ praktikus térkialakítás
✔ modern, energiatakarékos műszaki megoldások
✔ saját kertkapcsolat
✔ klíma a lakásokban
✔ egyedi igények figyelembe vétele a kivitelezés során

Ideális választás családoknak, első otthonnak vagy akár befektetésnek is.

Várom hívását a hét bármely napján.

Lakás részletei

Ár: 69 990 000 Ft
Méret: 62 négyzetméter
Azonosító: 11601858
Irodai azonosító: 393038
Cím: Táncsics Mihály utca
Emelet: 1. emelet
Építőanyag: Tégla
Fűtés jellege: Hőszivattyú
Ingatlan állapota: Felújított
Komfort fokozat: Összkomfort
Építési év: 21-50 éves
Tulajdonviszony: Saját
Kilátás: kertre néző
Egész szobák: 2

Egyéb jellemzők

  • Erkély
  • Garázs
  • Lift
  • Pince
  • Tároló

Térkép


Így keressen eladó lakást négy egyszerű lépésben. Csupán 2 perc, kötelezettségek nélkül!

Szűkítse a eladó lakások
listáját
Válassza ki a megfelelő
eladó lakást
Írjon a hirdetőnek
Várjon a visszahívásra