Eladó lakás Újszász 56 054 500 Ft

Leírás

A CasaNetWork Ingatlanhálózat kínálatában eladó épülő téglalakások Újszászon! 
Az ingatlan hirdetési azonosítója: 174602082

Az első épülő tömbben az 1. emeleti lakások vevői most 1.000.000 Ft kedvezményben részesülnek, amely levonásra kerül a vételárból!
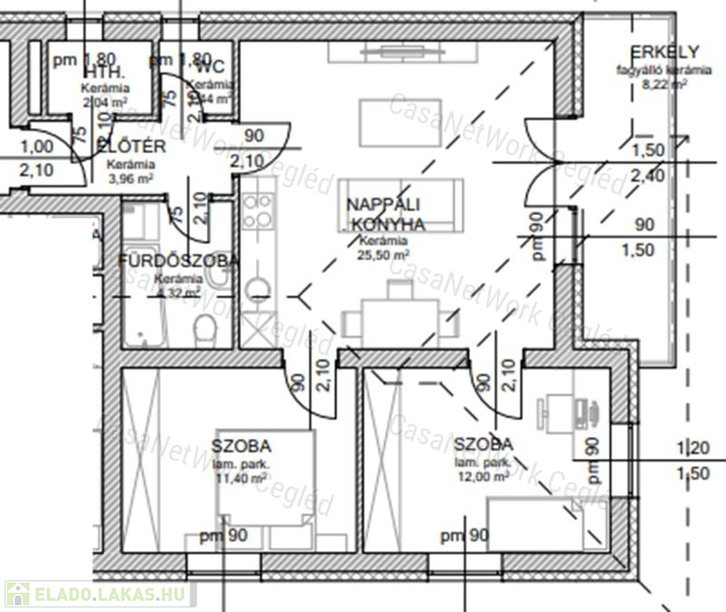
A hirdetett lakás: első emelet 6-es lakás: fűtött lakótér: 60,66 nm + 8,22 nm erkély.

A ház modern technológiával, kiváló minőségű anyagokból készül: Phorotherm 30-as falazat kiváló hőszigetelő képességekkel rendelkezik, így télen-nyáron komfortos hőmérsékletet biztosít. A nyílászárók hő- és hangszigetelő műanyag ablakok, amelyek fokozzák az energiahatékonyságot, és kellemes belső klímát teremtenek.

A fűtésről kondenzációs gázkazán gondoskodik padlófűtéssel. A nyári hőséget lakásonként 1 db inverteres klímaberendezés teszi elviselhetővé.

Ez az otthon minden műszaki és kényelmi igényt kielégít, amit a modern családi élet megkövetel.

Főbb jellemzők:

  • Tágas belső tér: 2 szoba, nappali-konyha, fürdőszoba+Wc, külön WC, háztartási helyiség, előtér és terasz.

  • Minőségi burkolatok: Laminált parketta melegburkolatként, választható mintázattal. Hidegburkolat: padlólap, legfeljebb 6.000 Ft/m² értékben.

  • Modern nyílászárók: Műanyag ablakok hő- és hangszigetelő, 3 rétegű üvegezéssel, erkélyajtók – a lakás szellőztetése a tulajdonos feladata.

  • Felszerelt fürdő és konyha: Kád vagy tusoló, kézmosó a fürdőben, wc

  • Korszerű fűtési rendszer: kondenzációs kazán, padlófűtés és radiátoros fűtés kombinációja.

  • Klíma: Inverteres klímaberendezés a kellemes nyári hőmérsékletért.

  • Biztonságos bejárat: többpontos zárral ellátott biztonsági ajtó.

Műszaki adatok:

  • Válaszfalak: 10 cm-es tégla, kiváló hang- és hőszigeteléssel.

  • Tető: Azzurro betoncserép

  • Közművek: Gáz, víz, villany, csatorna

Várható átadás: 2025 év vége
Az ingatlan műszaki tervei alapján hirdetjük meg. Kérjük, vegye figyelembe, hogy a használatbavételi engedély kiadását követően kisebb m²-eltérések előfordulhatnak.

Amennyiben a CasaNetWork Cegléd által kínált, 174602082 azonosítószámú téglalakás, vagy bármely más ingatlan felkeltette érdeklődését, keressen bizalommal a megadott telefonszámon!
Felhívjuk figyelmét, hogy a hirdetésben szereplő adatok a megbízótól származnak, azok pontosságáért felelősséget nem vállalunk.

Ügyfeleink részére díjmentes, bankfüggetlen hitelügyintézést biztosítunk! 2025 augusztusától elérhetőek a 3%-os lakáshitelek első lakásvásárlóknak!

CasaNetWork – Ingatlanban otthon vagyunk.

Lakás részletei

Ár: 56 054 500 Ft
Méret: 65 négyzetméter
Azonosító: 11549744
Irodai azonosító: 174602082
Emelet: 1. emelet
Építőanyag: Tégla
Fűtés jellege: Egyéb
Ingatlan állapota: Kitűnő
Egész szobák: 3

Így keressen eladó lakást négy egyszerű lépésben. Csupán 2 perc, kötelezettségek nélkül!

Szűkítse a eladó lakások
listáját
Válassza ki a megfelelő
eladó lakást
Írjon a hirdetőnek
Várjon a visszahívásra