Eladó lakás Tatabánya 47 990 000 Ft

Leírás

Teljesen bútorozott, 2018-as építésű lakás eladó Tatabánya Kertvárosban – csak beköltözni kell!
???? Eladó lakás Tatabányán, Kertvárosban – modern társasházban, alacsony rezsivel és teljes bútorzattal!
Tatabánya kedvelt, csendes és biztonságos Kertváros városrészében, egy 2018-ban épült, modern, igényesen kivitelezett társasházban kínálunk eladásra egy 40 négyzetméteres, első emeleti,2 szobás lakást. Az ingatlan fiatal építésű, korszerű műszaki megoldásokkal és kiváló hőszigeteléssel rendelkezik, ennek köszönhetően a fenntartási költségek rendkívül alacsonyak.
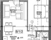
A lakás elrendezése praktikus és tágas érzetet kelt:
a nappali világos, barátságos hangulatú, ideális pihenésre vagy vendégek fogadására,
a félszoba kiválóan használható dolgozószobának, gardróbnak vagy kisebb hálónak,
a konyha modern, jól felszerelt,
a fürdőszoba igényes burkolatokkal, zuhanykabinnal került kialakításra.
A lakás összkomfortos, a fűtést házközponti gázkazán biztosítja, ami nemcsak kényelmes, de energiatakarékos és költséghatékony megoldás is. Az alacsony közös költség és a kedvező rezsi miatt a lakás fenntartása hosszú távon is gazdaságos.
Az ingatlan teljes bútorzattal együtt eladó, amely a vételár részét képezi – így az új tulajdonosnak semmilyen plusz beruházásra nincs szüksége, a lakás azonnal költözhető.
A társasház rendezett, tiszta, kulturált lakóközösséggel rendelkezik, a környék pedig kiváló infrastruktúrával bír: a közelben megtalálhatók bevásárlási lehetőségek, iskola, óvoda, buszmegálló, parkok és orvosi rendelő is. A belváros és az autópálya néhány perc alatt könnyedén megközelíthető.
Ez a lakás ideális választás lehet:
fiatal pároknak, akik első otthonukat keresik,
egyedülállóknak, akik modern és kényelmes környezetben szeretnének élni,
valamint befektetőknek, hiszen az ingatlan könnyen kiadható, stabil hozamot biztosíthat.???? Alapterület: 42 m²
????️ Szobák száma: 2
????️ Építés éve: 2018
???? Fűtés: házközponti gáz
???? Emelet: 1.
???? Bútorozott: igen, a bútorok a vételár részét képezik
???? Elhelyezkedés: Tatabánya, Kertváros
???? Állapot: újszerű, azonnal költözhető
Az ingatlan állapota, elhelyezkedése és felszereltsége miatt kiváló választás akár otthonnak, akár befektetésnek. Érdeklődni: Barabás Tamás 0630/441-7076

Lakás részletei

Ár: 47 990 000 Ft
Méret: 40 négyzetméter
Azonosító: 11571412
Irodai azonosító: 9487
Cím: Tatabánya
Emelet: 1. emelet
Építőanyag: Kérdezzen rá a hirdetőtől »
Fűtés jellege: Házközponti (egyedi mérővel)
Ingatlan állapota:
Egész szobák: 2

Egyéb jellemzők

  • Erkély

Így keressen eladó lakást négy egyszerű lépésben. Csupán 2 perc, kötelezettségek nélkül!

Szűkítse a eladó lakások
listáját
Válassza ki a megfelelő
eladó lakást
Írjon a hirdetőnek
Várjon a visszahívásra