Eladó lakás Szeged 99 000 000 Ft

Leírás


ÚJ ÉPÍTÉSŰ, BELVÁROSI, EXKLUZÍV, AZONNAL KÖLTÖZHETŐ!

 

Szeged belvárosában a Szent István tér közelében új építésű, magas színvonalon kivitelezett egyedi megoldásokkal tarkított, azonnal költözhető kulcsrakész lakásokat kínálunk megvételre!

A társasház 15 lakásos 45- 99 m2 közötti méretűekből lehet választani, mindegyikük erkélyes.

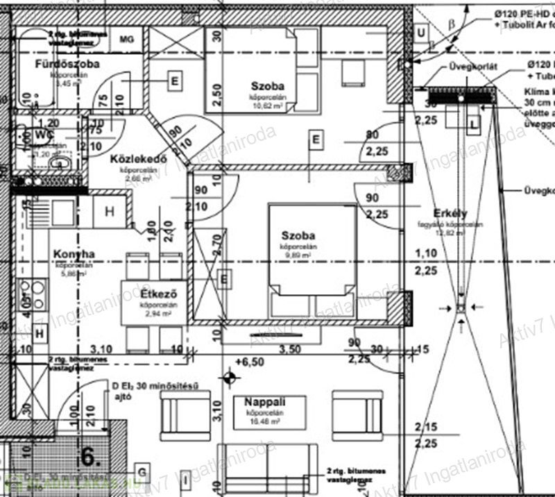
A szóban forgó lakás második emeleti, 53,10 m2 területű, amerikai konyha nappali +2 hálószobás, a hozzá tartozó   12,82 m2 terasszal (a fotók között található alaprajz szerint).

Teljesen készen van, burkolva, festve, elektromos redőnnyel, beltéri ajtókkal, szaniterekkel felszerelve kínáljuk. A vételár a konyhaszekrényt NEM tartalmazza.

A lakások egyedi mérővel ellátott, mennyezeti hűtés-fűtés rendszerrel kerülnek átadásra, a szobánkénti termosztátoknak köszönhetően „okosotthon” vezérlést is lehetővé téve.

A hőszivattyús rendszert gázkazános padlófűtéssel egészítettük ki a minél takarékosabb energiafelhasználás érdekében.

A teljes lépcsőház mészkővel burkolt, a lakások előtti folyosók belga gyártmányú padlószőnyeggel burkoltak, a földszint világítás egyedi, ahogyan a beépítésre került egyedi kivitelezésű gránit burkolatú lift is.

A teljes ház kőzetgyapot hőszigetelő rendszerrel van borítva, az épület homlokzatát LED világítással, olasz mészkővel tettük egyedivé.

Az udvaron a kültéri parkolók mellett növényekkel beültetett kert várja a lakókat.

A házat távfelügyelet által üzemeltetett kamerák védik a betolakodóktól.

A lakásokhoz garázs és  autóbeálló  vásárlási lehetőség is van.

Lakásainkhoz ajándékba belsőépítész által készített terveket adunk.

Az áraink tartalmazzák az ügyvédi munkadíjat, és a társasházalapítás teljes költségét is.

Amennyiben felkeltettem érdeklődését, megnézné az ingatlant, hívjon bizalommal!

Lakás részletei

Ár: 99 000 000 Ft
Méret: 66 négyzetméter
Azonosító: 11443341
Irodai azonosító: 675300929
Cím: Pusztaszeri utca
Emelet: 2. emelet
Építőanyag: Tégla
Ingatlan állapota: Kitűnő
Komfort fokozat: Összkomfort
Építési év: Új építésű
Egész szobák: 3

Egyéb jellemzők

  • Lift

Így keressen eladó lakást négy egyszerű lépésben. Csupán 2 perc, kötelezettségek nélkül!

Szűkítse a eladó lakások
listáját
Válassza ki a megfelelő
eladó lakást
Írjon a hirdetőnek
Várjon a visszahívásra