Eladó lakás Szeged 89 000 000 Ft

Leírás


Vevőink örömére újra a Csuka utcában építünk!

Földszint, terasz, kizárólagos kertkapcsolat!

A megszokott minőségben, stílusban, hogy kényelmes, minden igényt kielégítő otthont tudjunk kínálni Önöknek!

A most épülő társasházunk 4 szintes, liftes, 11 emeleti lakás (mindegyike erkélyes, vagy loggiás), a földszinten 2 lakás ( vagy iroda) kertkapcsolattal, garázsok és beállók kerülnek kialakításra.

A lakások kulcsrakészen kerülnek átadásra, burkolva, festve, elektromos redőnnyel, beltéri ajtókkal, szaniterekkel felszerelve . A vételár a konyhaszekrényt NEM tartalmazza.

A lakások hőszivattyús, egyedi mérővel ellátott, mennyezeti hűtés-fűtés rendszerrel kerülnek kialakításra , a minél takarékosabb energiafelhasználás érdekében.

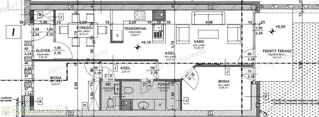
A szóban forgó földszinti lakás az alaprajzon irodaként szerepel, a helyiségek is ennek megfelelően vannak elnevezve. 62 m2 területű, ha lakásként funkcionál akkor amerikai konyha nappali +2 hálószobás , fürdőszoba- WC-vel , WC külön helyiségben is , 8 m2 fedett terasz és 25 m2 kert rész tartozik hozzá. (a fotók között található alaprajz szerint). Ennek a lakásnak a megvásárlásához a 3%-os otthon start hitel és a CSOK + hitel nem vehető igénybe.

Az áraink tartalmazzák az ügyvédi munkadíjat, és a társasházalapítás teljes költségét is.

Amennyiben felkeltettem érdeklődését, megnézné az ingatlant, hívjon bizalommal!

 

Lakás részletei

Ár: 89 000 000 Ft
Méret: 66 négyzetméter
Azonosító: 11566316
Irodai azonosító: 675301066
Cím: Csuka utca
Emelet: Földszint
Építőanyag: Tégla
Ingatlan állapota: Kitűnő
Komfort fokozat: Összkomfort
Építési év: Új építésű
Egész szobák: 3

Egyéb jellemzők

  • Lift

Így keressen eladó lakást négy egyszerű lépésben. Csupán 2 perc, kötelezettségek nélkül!

Szűkítse a eladó lakások
listáját
Válassza ki a megfelelő
eladó lakást
Írjon a hirdetőnek
Várjon a visszahívásra