Eladó lakás Szeged 67 378 500 Ft

Leírás

Eladásra kínálunk újépítésű lakásokat Szeged Rókus városrész belvárosához közeli csendes utcájában.

Társasházban változatos alapterületű lakások köthetőek le 22 m2-től -78 m2-ig, amelyek 31,6 -108,7 M. forintos áron vásárolhatóak meg.

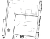
A társasház első emeltén található 48 m2-es lakás elrendezése:

• Amerikai konyhás nappali 23,49 m2
• Hálószoba 11,48 m2
• Fürdőszoba 6,6 m2
• Közlekedő 6,67 m2

Parkolás az utcán vagy a társasházban megvásárolható beálló vagy süllyesztett parkolóliftes beállási helyeken oldható meg.

• Süllyesztett parkolólift ár 4,5 M. forint / db
• Kocsibeálló ára 4,65 M. forint / db

Társasház magas színvonalú kivitelezéssel és minőségi alapanyagok felhasználásával, valamint korszerű energiatakarékos műszaki tartalommal kerül megépítésre.

A generálkivitelező cég évek óta minőségi kivitelezéssel épít ingatlanokat.

A kulcsrakész átadás tervezett időpontja 2026 első félévében.

Kedvezményes hiteligénylés, CSOK, BABAVÁRÓ támogatás esetén, kezdeményezheti a kapcsolatfelvételt díjmentesen bankfüggetlen hitelszakértő munkatársunkkal.

Az ingatlan megtekintése előre egyeztetett időpontban lehetséges, akár hétvégén is.

Amennyiben felkeltette az érdeklődését, további kérdéseivel kapcsolatban várom a jelentkezését.

Lakás részletei

Ár: 67 378 500 Ft
Méret: 48 négyzetméter
Azonosító: 11574063
Irodai azonosító: 388691
Cím: Szeged
Emelet: 1. emelet
Építőanyag: Tégla
Fűtés jellege: Egyedi
Ingatlan állapota: Kitűnő
Komfort fokozat: Összkomfort
Építési év: Új építésű
Tulajdonviszony: Saját
Kilátás: utcai
Egész szobák: 2

Egyéb jellemzők

  • Erkély
  • Garázs
  • Lift
  • Pince
  • Tároló

Térkép


Így keressen eladó lakást négy egyszerű lépésben. Csupán 2 perc, kötelezettségek nélkül!

Szűkítse a eladó lakások
listáját
Válassza ki a megfelelő
eladó lakást
Írjon a hirdetőnek
Várjon a visszahívásra