Eladó lakás Szeged 65 000 000 Ft

Leírás

Szeged Alsóváros ÚJ ÉPÍTÉSŰ TÁRSASHÁZI LAKÁSOK !!!!

Szeged-Alsóváros, Testnevelési Főiskola közelében 10 lakásos, emelt szintű szerkezetkész társasház épül.
A modern, 4 szintes épület ( fsz., 1.em., 2.em., 3.em (tetőtér ) lakásai változatos méretben készülnek, erkéllyel , rendelkeznek. Modern és igényes lakások ,nyugodt környezet.
Maximális helykihasználás a lakásokban.
Energiatakarékos kivitelezés az alacsony rezsiköltségért.
Homlokzat, udvar, közösségi terek 100 %-os elkészültség
Falazat:
-tégla falazat
Fűtés – hűtés: geotermikus fűtés, hőszivattyús (padlófűtés) hőmennyiség mérő minden lakáshoz

Hűtés -fan coilos
Nyílászárók:- műanyag nyílászárók redőny előkészítés

- Villanyszerelés csövezés

-Víz szerelés

- Hanggátló előtét falak

-Vakolás

Várható szerkezetkész átadás: 2025 II.n.év

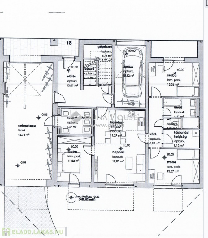
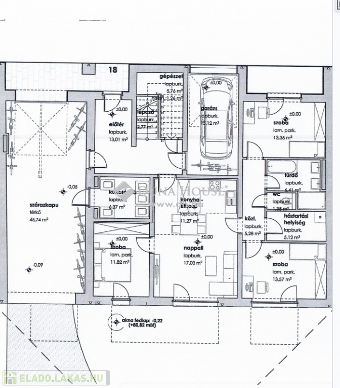
Az 1.számú lakás az épület földszintjén található, alapterülete 65 m2, melyben nappali, konyha-étkező( 28,3m2), 2 szoba (13,57, 11,82m2) és fürdő,Wc került kialakításra. A lakáshoz tartozik 150 m2-es saját kertrész melyet az ár tartalmaz!
A lakáshoz zárt garázs is vásárolható!

A lakások emelt szintű szerkezetkész állapotban kerülnek értékesítésre, de a Beruházó megrendelés esetén vállalja a megvásárolt ingatlan kulcsrakész állapotra történő kivitelezést.


Az ingatlan elhelyezkedése kiváló, hiszen a Belváros bármely pontja néhány perc alatt elérhető.
Közvetlen közelében villamosmegálló, klinikák valamint számos oktatási intézmény található.

Ajánlom azoknak, akik modern otthont szeretnének, de befektetési célra is remek lehetőség.
Tisztelt ingatlantulajdonos !
Slivkáné Zsiros Éva vagyok, a Duna House Oroszlán utcai irodájában dolgozom. Ingatlanok eladásában, vételében, bérbeadásában, értékbecslésben, hitelnyújtásban, CSOK, babaváró támogatásban, energetikai tanúsítvány készítésében tudok segítséget nyújtani. Forduljon hozzám bizalommal.

Lakás részletei

Ár: 65 000 000 Ft
Méret: 85 négyzetméter
Azonosító: 11399944
Irodai azonosító: PR065553/LK/19765-4674593
Emelet: Földszint
Építőanyag: Tégla
Fűtés jellege: Hőszivattyú
Ingatlan állapota: Épülő
Komfort fokozat: Összkomfort
Építési év: Új építésű
Kilátás: utcai
Egész szobák: 3

Egyéb jellemzők

  • Garázs

Térkép


Így keressen eladó lakást négy egyszerű lépésben. Csupán 2 perc, kötelezettségek nélkül!

Szűkítse a eladó lakások
listáját
Válassza ki a megfelelő
eladó lakást
Írjon a hirdetőnek
Várjon a visszahívásra