Eladó lakás Szeged 123 900 000 Ft

Leírás

Szeged egyik legelegánsabb, frekventált környékén Szent István téren az Öreghölgy lábánál eladó egy impozáns épület magasföldszintjén lévő lakás. Az épület ék köve a bejárat felett lévő kék Zsolnay-kerámiából készült sodort szőlőlevelek. A homlokzat eleganciája a belső lépcsőházban és függőfolyosón is megmutatkozik.
A lakáshoz opcionálisan garázsok is vásárolhatók.
Az ingatlanban jelenleg iroda működik, a tulajdoni lapon társasházi lakás megnevezés szerepel.

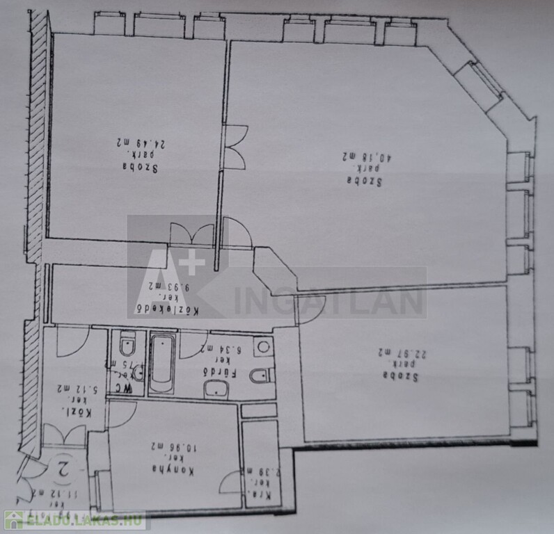
Az ingatlan főbb paraméterei:
-magasföldszint
-124,13 m2
-3 nagyméretű szoba, akár 4 szobássá is alakítható ( 23-24,5-40 m2 )
-egyedi gáz-cirkó fűtés kondenzációs kazánnal, radiátoros hőleadókkal
-redőny
-4 db. klíma
-riasztórendszer
-lift
-garázs vásárlási lehetőség: 14 m2, 16,7 m2, 43 m2
-frekventált elhelyezkedés
-kiemelt lakhatás és bérbeadhatóság

További kérdéssel és időpontegyeztetéssel forduljon hozzám bizalommal: Horváth Zsuzsa
06 30 98-30-465

Lakás részletei

Ár: 123 900 000 Ft
Méret: 124 négyzetméter
Azonosító: 11555545
Irodai azonosító: 121034
Cím: Szeged
Építőanyag: Kérdezzen rá a hirdetőtől »
Fűtés jellege: Cirkó
Ingatlan állapota:
Egész szobák: 3

Egyéb jellemzők

  • Erkély

Így keressen eladó lakást négy egyszerű lépésben. Csupán 2 perc, kötelezettségek nélkül!

Szűkítse a eladó lakások
listáját
Válassza ki a megfelelő
eladó lakást
Írjon a hirdetőnek
Várjon a visszahívásra