Eladó lakás Sopron 64 000 000 Ft

Leírás

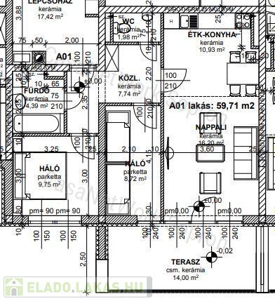
A01Hőszivattyúval és napelemmel működő fűtés- és melegvíz ellátás, mely nem jár költséggel!!
Sopron kertvárosi övezetében, most induló új projekt keretében eladó egy 67 m2 nagyságú, nappali +  2 hálószobás, földszinti lakás.A társasház kivitelezése jelenleg a korai szakaszban tart, ezért a most megvásárolt ingatlannál még lehet élni a kezdeti stádium előnyeivel.Tároló, teremgarázs, garázs és felszíni beálló is vásárolható.Magas szintű technológiai paraméterek, megtérülő. befektetésHitel ügyintézésben segítséget nyújtunk.CSOK szintén igénybe vehető.
Vásárolna, de most nincs rá  pénzügyi keret? Kolléganőm, Szilágyi Melinda díjmentes, bankfüggetlen, személyre szabott hitel ügyintézéssel áll rendelkezésére.Amennyiben a ....164302801 .................számú, vagy bármely kínálatunkban szereplő ingatlan felkeltette érdeklődését, hívjon a megadott telefonszámon, vagy forduljon a KÖZPONTI irodánkhoz, Sopron, Várkerület 19.  Tel: +36 99 386 607.

Lakás részletei

Ár: 64 000 000 Ft
Méret: 67 négyzetméter
Azonosító: 10883393
Irodai azonosító: 164302801
Emelet: Földszint
Építőanyag: Tégla
Ingatlan állapota: Kitűnő
Egész szobák: 3

Így keressen eladó lakást négy egyszerű lépésben. Csupán 2 perc, kötelezettségek nélkül!

Szűkítse a eladó lakások
listáját
Válassza ki a megfelelő
eladó lakást
Írjon a hirdetőnek
Várjon a visszahívásra