Eladó lakás Sopron 55 000 000 Ft

Leírás

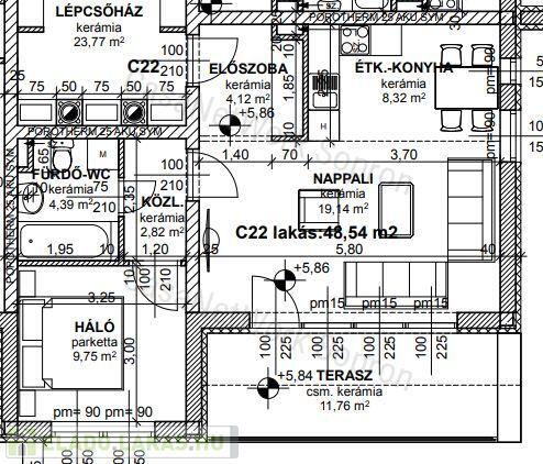
C22Hőszivattyúval és napelemmel működő fűtés- és melegvíz ellátás, mely nem jár költséggel!!!Sopron kertvárosi övezetében, most induló új projekt keretében eladó egy 54 m2 méretű 2 szobás, nagy erkélyes második emeleti lakás.A társasház kivitelezése jelenleg korai szakaszban tart, ezért a most megvásárolt ingatlannál még lehet élni a kezdeti stádium előnyeivel.Tároló, teremgarázs, garázs és felszíni beálló is vásárolható.Magas szintű technológiai paramétereknek, megtérülő befektetés.Hitel ügyintézésben segítséget nyújtunk.CSOK igénybe vehető.
Vásárolna, de most nincs rá  pénzügyi keret? Kolléganőm, Szilágyi Melinda díjmentes, bankfüggetlen, személyre szabott hitelügyintézéssel áll rendelkezésére.Amennyiben a ......164302823...............számú, vagy bármely kínálatunkban szereplő ingatlan felkeltette érdeklődését, hívjon a megadott telefonszámon, vagy forduljon a KÖZPONTI irodánkhoz, Sopron, Várkerület 19.  Tel: +36 99 386 607.

Lakás részletei

Ár: 55 000 000 Ft
Méret: 54 négyzetméter
Azonosító: 11096001
Irodai azonosító: 164302823
Emelet: 2. emelet
Építőanyag: Tégla
Fűtés jellege: Házközponti (egyedi mérővel)
Ingatlan állapota:
Egész szobák: 2

Így keressen eladó lakást négy egyszerű lépésben. Csupán 2 perc, kötelezettségek nélkül!

Szűkítse a eladó lakások
listáját
Válassza ki a megfelelő
eladó lakást
Írjon a hirdetőnek
Várjon a visszahívásra