Eladó lakás Siófok 141 100 000 Ft

Leírás

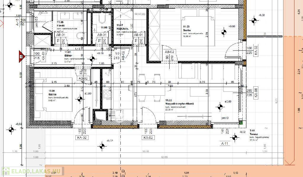
Balaton déli part, Siófok, Ezüstpart panorámás üdülőegység közvetlen szabadstrandi csatlakozással eladó. Az ingatlan egy 3 szintes társasüdülőben helyezkedik el. Újépítésű projekt jelenleg építés alatt álló üteme. Az üdülőlakás korszerű energetikai megoldásokkal készül. A homlokzati nyílászárók 3 rétegű hőszigetelő üvegezésű szerkezetek, árnyékolástechnikai előkészítéssel. A belső terek hűtését fűtését és a használati melegvíz előállítást hőszivattyú biztosítja. Az egységekben a riasztórendszer előkészítve becsövezve, vezetékezve kivitelezve. A lakáselválasztó falak fokozott hangszigetelésűek, hanggátló falakkal épülnek. A lakásokon belüli anyagok (hideg és melegburkolatok) választhatók a kivitelezés ütemének megfelelően, hogy minden tulajdonos saját ízlése, elképzelése szerint alakíthassa ki álmai nyaralóját.
A telken belül személygépkocsi elhelyezése zárt parkolóban biztosított. Az épületek környezete parkosított, automata öntözőrendszerrel. Az emeleti lakások megközelítése lifttel megoldott. A lakóterekhez és egyes hálókhoz teraszkapcsolat biztosított. Vasútállomás 900 méterre, gyalog 12 perc távolságban van. Befektetők részére is ajánljuk, akár kereskedelmi szálláshelyként is üzemeltethető. Földszint 64 m2, 37 m2 terasz.
Bővebb információért, megtekintésért, a szabad lakások listájáért keressen telefonon!

Referencia szám: M308095

Lakás részletei

Ár: 141 100 000 Ft
Méret: 64 négyzetméter
Azonosító: 11551688
Irodai azonosító: M308095-4991792
Emelet: Földszint
Építőanyag: Tégla
Ingatlan állapota: Átlagos
Építési év: Új építésű
Kilátás: panorámás
Egész szobák: 2
Fél szobák: 1

Egyéb jellemzők

  • Lift
  • Kocsibeálló

Térkép


Így keressen eladó lakást négy egyszerű lépésben. Csupán 2 perc, kötelezettségek nélkül!

Szűkítse a eladó lakások
listáját
Válassza ki a megfelelő
eladó lakást
Írjon a hirdetőnek
Várjon a visszahívásra