Eladó lakás Siófok 140 000 000 Ft

Leírás

!!SIÓFOK ARANYPARTON MEDENCÉS TÁRSASHÁZI LAKÁS!!
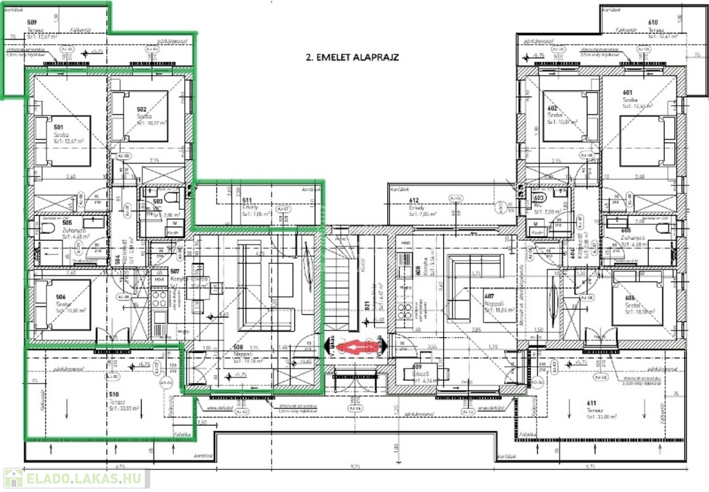
SIÓFOK ARANYPART frekventált és nyugalmas részén a Beszédes József sétányon, a Balaton parttól 30 méterre, 6 lakásos társas házban, bruttó 124 m2 alapterületű, 4 szobás, 52 m2 dupla terasszal rendelkező, modern kialakítású lakás ELADÓ.

Az ingatlan magas színvonalú kivitelezéssel került újjáépítésre, a mai kor energetikai igényei alapján. A 2 szintes társas ház téglából épült, homlokzati szigeteléssel rendelkezik. A fűtés termosztáttal vezérelt elektromos padlófűtés, hűtő-fűtő klíma. Műszaki paraméterei: szigetelt lemeztető, műanyag nyílászárók, fa beltéri ajtók, minőségi meleg és hidegburkolatok. A lakásban lévő berendezés a vételár részét képezi.

A 6 lakásos társas ház rendezett, közös használatú udvarán található medence, és napozó terasz. A lakásokhoz 2 saját autóbeálló tartozik, melyek megvásárlása kötelező, ára 2x4.000.000,- Ft.

Az ingatlan elhelyezkedése tökéletes, a Balaton panorámája minden ablakból, teraszról, lenyűgöző látványt nyújt. A szabad strand néhány méterre található, a Petőfi sétány éttermei, kávézói és szórakozási lehetőség 15 perc séta távolságban elérhető.

Ezt a tökéletesen kivitelezett, kiváló helyen lévő ingatlant ajánlom azoknak, akik igényes családi otthont, négy évszakos nyaralót keresnek, hiszen biztosított generációkon keresztül értékállósága. Befektetőknek ajánlom a kiváló elhelyezkedés és értékállósága miatt.
A Balaton nyújtotta lehetőségek és a városközpont könnyen elérhetőek minden évszakban.

Ha az ajánlat felkeltette érdeklődését, kérem hívjon bizalommal.

Lakás részletei

Ár: 140 000 000 Ft
Méret: 124 négyzetméter
Azonosító: 11449327
Irodai azonosító: 376309
Cím: Beszédes József sétány
Emelet: 2. emelet
Építőanyag: Tégla
Fűtés jellege: Villany
Ingatlan állapota: Kitűnő
Komfort fokozat: Összkomfort
Építési év: Új építésű
Tulajdonviszony: Saját
Kilátás: panorámás
Egész szobák: 4

Egyéb jellemzők

  • Erkély
  • Garázs
  • Lift
  • Pince
  • Tároló

Térkép


Így keressen eladó lakást négy egyszerű lépésben. Csupán 2 perc, kötelezettségek nélkül!

Szűkítse a eladó lakások
listáját
Válassza ki a megfelelő
eladó lakást
Írjon a hirdetőnek
Várjon a visszahívásra