Eladó lakás Salgótarján 26 400 000 Ft

Leírás

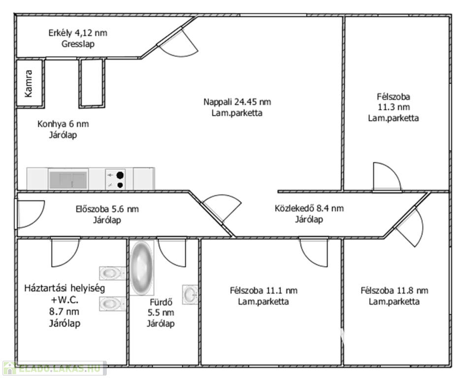
Salgótarjánban, (Vásártér), 1999-ben épült, kiváló állapotú, kelet-nyugati tájolású, 98 nm-es, 4. emeleti, 1+3 félszobás, tehermentes lakás eladó!

Ritkán elérhető ilyen állapotú, ilyen méretű belvárosi lakás! Használja ki a lehetőséget!

Az ingatlanban 1 szoba (nappali), 3 félszoba, fürdőszoba, külön nyíló W.C., konyha, kamra, közlekedő, előszoba, erkély található.

A fűtést és a meleg víz ellátást gázos kombi cirkó kazán biztosítja.

A lakás egyedi tervek alapján, a társasház tetőterének beépítésével került kialakításra 1999-ben.

Méretéből, tagolásából adódóan nagyobb családok, fiatal házasok ideális választása lehet (CSOK igényelhető 4 gyerekre!).

A lakás felett található tágas padlás kiváló tárolási lehetőséget biztosít.

Igény esetén a nappaliba kéménybe kötött kandalló beépíthető, ezáltal fokozva a komfortérzetet.

A külső szigeteléssel ellátott társasház, az egyik legrendezettebb a környéken, lakói barátságosak, összetartóak.

Besztercei lakás beszámítása, értékegyeztetéssel lehetséges!

A városközpont 5 percen belül gyalogosan elérhető, buszmegálló, vasútállomás, orvosi rendelő, SPAR, piac 200 méteren belül található.
(További képekért és információkért kérem hívjon!)

Lakás részletei

Ár: 26 400 000 Ft
Méret: 98 négyzetméter
Azonosító: 11483675
Irodai azonosító: 522319
Erkély mérete: 4.00 négyzetméter
Építőanyag: Tégla
Fűtés jellege: Konvektoros
Ingatlan állapota: Kitűnő
Komfort fokozat: Összkomfort
Egész szobák: 4

Egyéb jellemzők

  • Erkély
  • Garázs
  • Klíma
  • Lift
  • Pince
  • Kertkapcsolat

Így keressen eladó lakást négy egyszerű lépésben. Csupán 2 perc, kötelezettségek nélkül!

Szűkítse a eladó lakások
listáját
Válassza ki a megfelelő
eladó lakást
Írjon a hirdetőnek
Várjon a visszahívásra