Eladó lakás Nyíregyháza 62 000 000 Ft

Leírás

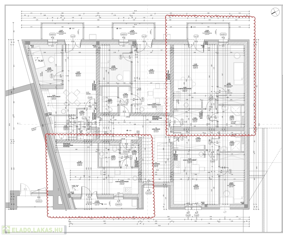
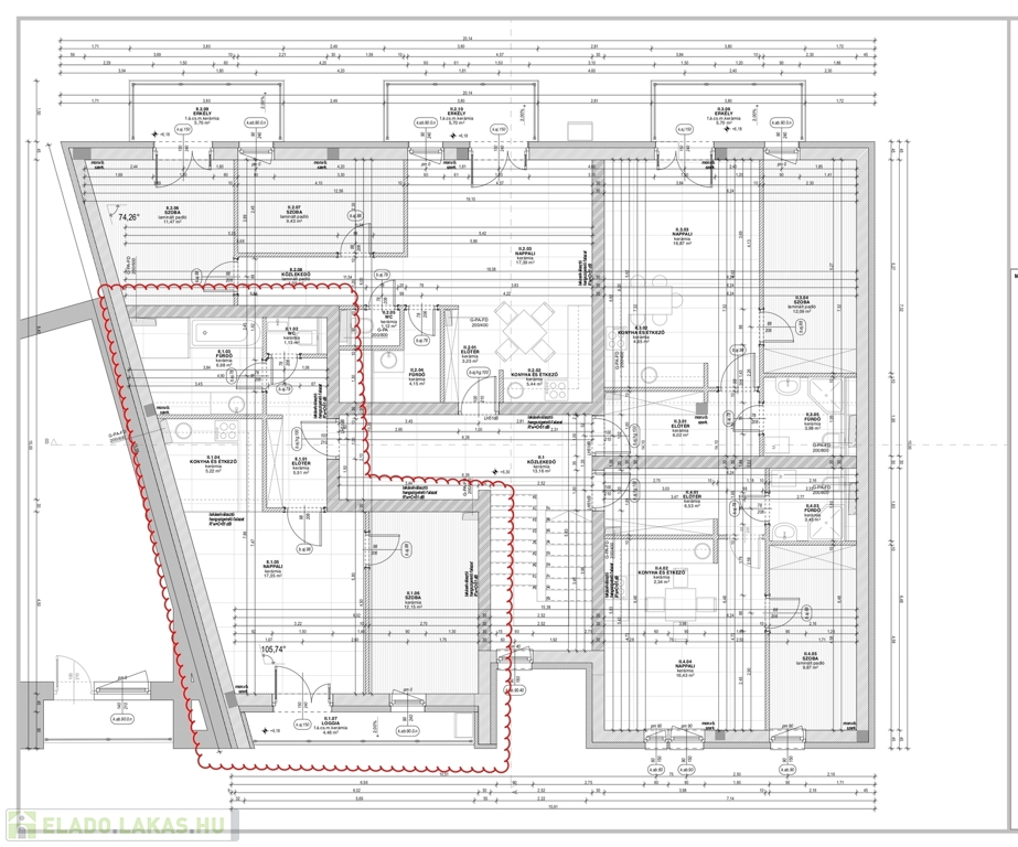
Nyíregyháza belváros közeli részén, a Debreceni út közelében eladásra kínálok új építésű társasházi lakásokat. Az ingatlanok az első és a második emeleten találhatók és 15 cm-es külső hőszigeteléssel és 3 rétegű műanyag nyílászárókkal épülnek. A burkolatok és a beltéri ajtók kiválasztása az új tulajdonosokra várnak.
Várható átadás 2026. 11. 30.
Második emeleti lakások:

62,02 m2. 2 szoba + nappali, 5,7 m2-es erkély - 67,72 M Ft

Garázsok:

2 db 28 m2-es garázs - 12,5 M Ft/garázs
1 db 17 m2-es garázs - 8,5 M Ft

Gépkocsi beállók:

6 db beálló 2,9 M Ft/db

Ingatlanirodánk több éves tapasztalattal, megbízható háttérrel és teljes körű ügyintézéssel áll az Ön rendelkezésére.Amennyiben további információra lenne szüksége, vagy szeretné megtekinteni az ingatlant, várom hívását! Jöjjön és nézze meg!Az ingatlan azonosítója: 69692Érdeklődni: 06302669818 Az ingatlan azonosítója: 69692 Érdeklődni: 06302669818

Lakás részletei

Ár: 62 000 000 Ft
Méret: 62 négyzetméter
Azonosító: 11597235
Irodai azonosító: 69692
Emelet: 1. emelet
Építőanyag: Tégla
Fűtés jellege: Cirkó
Ingatlan állapota: Épülő
Építési év: Új építésű
Egész szobák: 2

Egyéb jellemzők

  • Lift

Így keressen eladó lakást négy egyszerű lépésben. Csupán 2 perc, kötelezettségek nélkül!

Szűkítse a eladó lakások
listáját
Válassza ki a megfelelő
eladó lakást
Írjon a hirdetőnek
Várjon a visszahívásra