Eladó lakás Nyíregyháza 37 800 000 Ft

Leírás

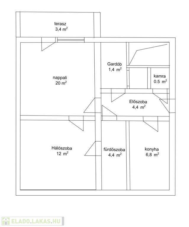
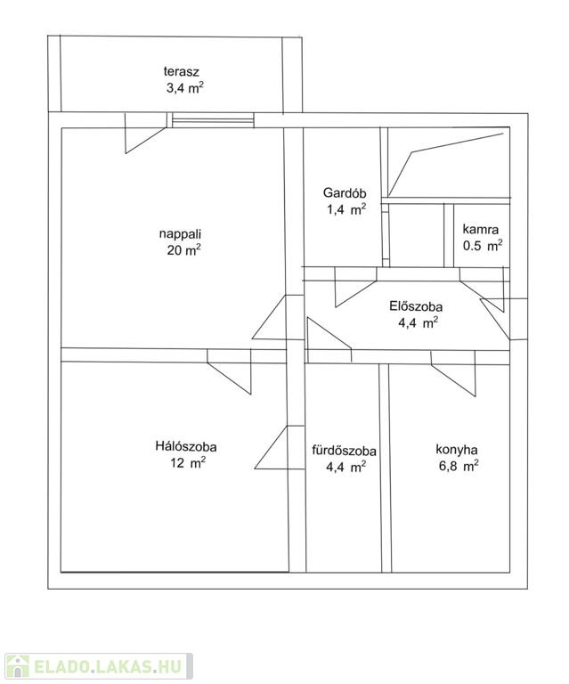
Nyíregyháza Víztorony közelében eladó egy 55 nm-es, 2 szobás, erkélyes lakás egy négyemeletes, külsőleg szigetelt, műanyag nyílászárókkal szerelt, téglaépítésű társasház 3. emeletén. A lakás burkolatai járólap és parketta, nyílászárói műanyagok, fűtése gázkonvektoros. A praktikus elrendezéshez erkély és saját tároló is tartozik. Az ingatlan átlagos állapotú, tehermentes, és azonnal költözhető, így kiváló választás lehet saját részre vagy befektetésnek is. Energetikai Besorolás: CC Az ingatlan azonnal birtokba vehető, tehermentes. Amennyiben szeretné megtekinteni,forduljon hozzám bizalommal!Az ingatlan azonosítója: 99590Érdeklődni: +36703610015 Az ingatlan azonosítója: 99590 Érdeklődni: +36703610015

Lakás részletei

Ár: 37 800 000 Ft
Méret: 55 négyzetméter
Azonosító: 11595729
Irodai azonosító: 99590
Emelet: 3. emelet
Építőanyag: Tégla
Fűtés jellege: Konvektoros
Ingatlan állapota: Átlagos
Építési év: 50 évesnél régebbi
Egész szobák: 2

Egyéb jellemzők

  • Lift

Így keressen eladó lakást négy egyszerű lépésben. Csupán 2 perc, kötelezettségek nélkül!

Szűkítse a eladó lakások
listáját
Válassza ki a megfelelő
eladó lakást
Írjon a hirdetőnek
Várjon a visszahívásra