Eladó lakás Miskolc 49 500 000 Ft

Leírás


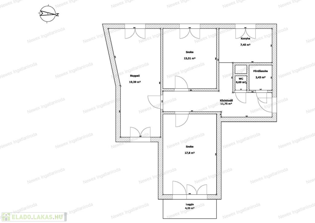
Eladó egy tökéletes lokációval rendelkező, teljes körűen felújított, egyedi kialakítású 76 négyzetméteres panellakás, amely minden igényt kielégít, akár saját otthonnak, akár befektetésnek keres ingatlant.

A lakás központi elhelyezkedésének köszönhetően minden fontos intézmény, üzlet, szolgáltatás és tömegközlekedési lehetőség néhány perc sétával elérhető. Az ingatlan egy panelprogramon átesett, rendezett társasházban található, kulturált lépcsőházzal.

A lakás elosztása rendkívül kedvező: 3 tágas, külön nyíló szoba, melyek napfényesek és világosak, így kellemes, élhető tereket biztosítanak a mindennapokhoz. Az erkély tovább növeli a komfortérzetet, ideális pihenésre vagy akár egy reggeli kávé elfogyasztására.

A felújítás során minden fontos műszaki és esztétikai elem megújult:

- teljes villamoshálózat cseréje,

- vízvezetékek felújítása,

- modern, új konyhabútor, beépített sütővel, főzőlappal és mosogatógéppel (melyek a vételár részét képezik)

- igényesen felújított fürdőszoba és WC,

- a lakás teljes területén álmennyezet és beépített világítás.

A komfortot tovább növeli a 2 darab hűtő-fűtő klíma, valamint az egyedi fűtésmérőkkel ellátott radiátoros rendszer, amely gazdaságos fenntartást biztosít.

Ez az ingatlan ideális választás mindazok számára, akik azonnal költözhető, magas színvonalon felújított, világos és jó elosztású lakást keresnek a belvárosban, kompromisszumok nélkül.

Ne hagyja ki ezt a ritka lehetőséget – jöjjön el, és nézze meg személyesen is!

 

Az ingatlan energetikai besorolásának meghatározása jelenleg folyamatban van.

Lakás részletei

Ár: 49 500 000 Ft
Méret: 76 négyzetméter
Azonosító: 11610718
Irodai azonosító: 698900788
Emelet: 3. emelet
Építőanyag: Panel
Fűtés jellege: Egyéb
Ingatlan állapota: Felújított
Komfort fokozat: Összkomfort
Egész szobák: 3

Egyéb jellemzők

  • Lift

Így keressen eladó lakást négy egyszerű lépésben. Csupán 2 perc, kötelezettségek nélkül!

Szűkítse a eladó lakások
listáját
Válassza ki a megfelelő
eladó lakást
Írjon a hirdetőnek
Várjon a visszahívásra