Eladó lakás Miskolc 29 950 000 Ft

Leírás


Ritka lehetőség kedvező áron! Eladó egy téglaépítésű, háromszintes társasház 2. emeletén található, azonnal költözhető lakás saját szerelőaknás garázzsal ami mindössze 30 méterre található a ház bejáratától.

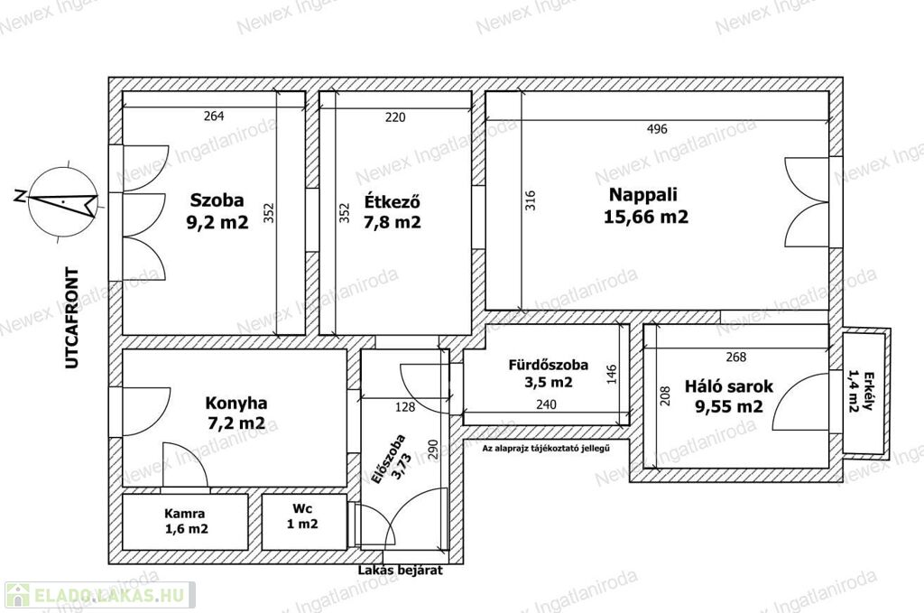
Az ingatlan erkélyes, két szobával, hálóval, étkezővel, konyhával, fürdőszobával, kamrával, külön WC-vel és előszobával rendelkezik – tágas tereivel több gyermekes család számára is ideális választás. A fűtést gázkonvektor biztosítja, a melegvizet a fürdőszobában gázüzemű berendezés adja, míg a konyhai munkákhoz 10 literes vilanybojler szolgáltatja. Az ablakok hagyományos fa szerkezetűek és redőnnyel rendelkeznek.



A 2,2 méter széles ajtóval rendelkező garázs biztonságos helyet nyújt autójának, míg a lakás barátságos elrendezése és azonnali költözhetősége valódi értéket képvisel ezen a környéken.

Érdemes élni ezzel a ritka lehetőséggel, ahol az ár és az érték tökéletesen találkozik!

 

Lakás részletei

Ár: 29 950 000 Ft
Méret: 55 négyzetméter
Azonosító: 11573754
Irodai azonosító: 698900713
Emelet: 2. emelet
Építőanyag: Tégla
Fűtés jellege: Konvektoros
Ingatlan állapota: Átlagos
Komfort fokozat: Összkomfort
Egész szobák: 2
Fél szobák: 1

Egyéb jellemzők

  • Lift

Így keressen eladó lakást négy egyszerű lépésben. Csupán 2 perc, kötelezettségek nélkül!

Szűkítse a eladó lakások
listáját
Válassza ki a megfelelő
eladó lakást
Írjon a hirdetőnek
Várjon a visszahívásra