Eladó lakás Miskolc, Avas, 25 950 000 Ft

Leírás

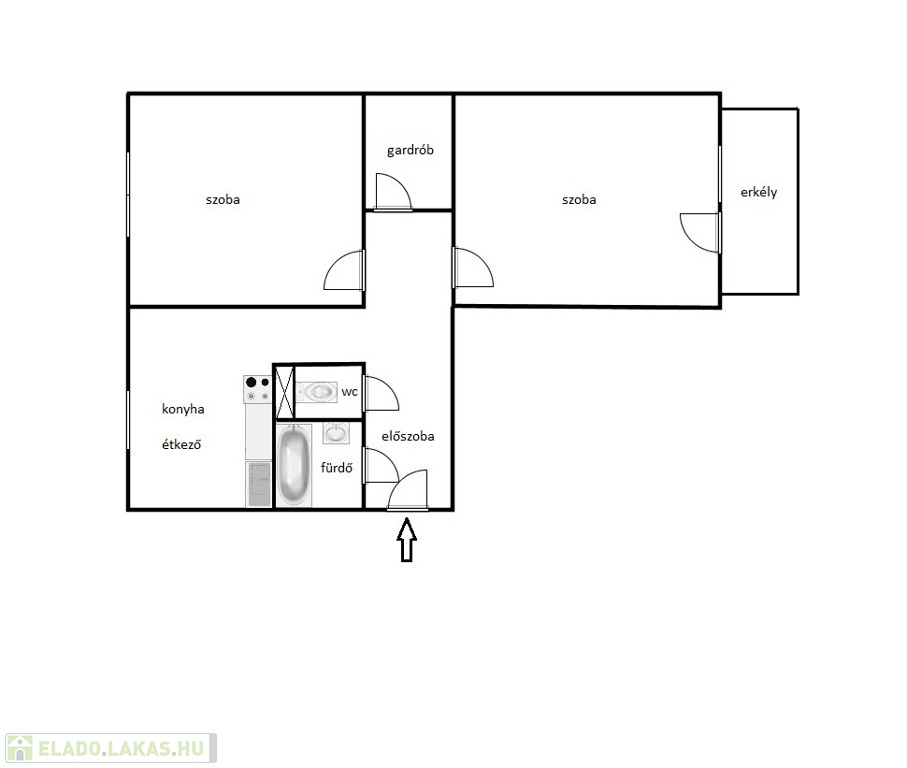
Miskolc Avas II. ütemben, a Szentgyörgy út 63 sz. alatt, földszint + 10 emelet szintmegosztású társasház magasföldszintjén, felújított 55 nm-es, 2 szobás, erkélyes lakás, pincével együtt eladó.

Tömegközlekedési, bevásárlási, szociális és közintézményi kapcsolatai kiválóak, környezete parkosított.

Felújítások:
- konyha, fürdőszoba-WC felújítása, nyílászárók, bejárati ajtó cseréje, villany és vízvezetékek cseréje, klímabeszerelés

Helyiséglista
- 2 szoba, gardrób, előszoba, konyha, fürdőszoba, WC, erkély, pince

Ir.ár: 25,95 M

További információért kérem keressen telefonon

Lakás részletei

Ár: 25 950 000 Ft
Méret: 55 négyzetméter
Azonosító: 11604936
Irodai azonosító: 4896
Cím: Szentgyörgy u.
Városrész: Avas
Emelet: Magasföldszint
Építőanyag: Panel
Fűtés jellege: Távfűtés
Ingatlan állapota: Felújított
Komfort fokozat: Összkomfort
Elhelyezkedés: Társasház
Tulajdonviszony: Saját
Kilátás: utcai
Kert: Nincs
Egész szobák: 2

Egyéb jellemzők

  • Erkély
  • Garázs
  • Klíma
  • Lift
  • Pince
  • Kertkapcsolat
  • Tároló
  • Kocsibeálló

Térkép


Így keressen eladó lakást négy egyszerű lépésben. Csupán 2 perc, kötelezettségek nélkül!

Szűkítse a eladó lakások
listáját
Válassza ki a megfelelő
eladó lakást
Írjon a hirdetőnek
Várjon a visszahívásra