Eladó lakás Komárom 54 762 000 Ft

Leírás

Komárom kedvelt lakóövezetében, új építésű társasházban, lakások eladók!

A korszerű technikával és legmodernebb építőanyagok felhasználásával épülő 3 emeletes társasházban 15 db lakás kapott helyet. A földszinten üzlet, a három szinten pedig szintenként 5 db lakás található.

Az ingatlanok kulcsrakész állapotban kerülnek átadásra 2025 második felében.

Műszaki tartalom:

-38 cm égetett kerámia falazóelem

-homlokzati szigetelés DRYVIT rendszerrel CEMIX homlokzati vakolattal

-válaszfalak 10 cm POROTHERM válaszfallap

- lakáselválasztó fal 20 cm BAKONYTHERM 20N+F hanggátló tégla

- nyílászárók 3 réteg hőszigetelő üvegezésű REHAU profilrendszerű szerkezetek

-fűtés és melegvíz ellátás levegő-víz hőszivattyúval padlófűtésen keresztül, hűtés fan-coillal

-áramellátás 1*32 A , a hőszivattyú részére H tarifa

A vételár tartalmazza a lakást kulcsrakész állapotban, 1 db tárolót és 1 db felszíni autóbeállót.

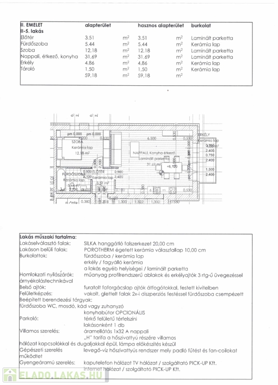
II. emelet 5. lakás:

alapterület: 52,82 m2 ( előtér 3,51 m2; fürdőszoba 5,44 m2; szoba 12,18 m2, nappali-étkező-konyha 31,69 m2)

erkély: 4,86 m2

É-K-i fekvés


Kiváló elhelyezkedésű, könnyen megközelíthető ingatlan!

Lakás részletei

Ár: 54 762 000 Ft
Méret: 52 négyzetméter
Azonosító: 11435901
Irodai azonosító: 374822
Cím: belváros közelében
Emelet: 2. emelet
Építőanyag: Tégla
Fűtés jellege: Hőszivattyú
Ingatlan állapota: Kitűnő
Komfort fokozat: Összkomfort
Építési év: Új építésű
Tulajdonviszony: Saját
Kilátás: utcai
Egész szobák: 2

Egyéb jellemzők

  • Erkély
  • Garázs
  • Lift
  • Pince
  • Tároló

Térkép


Így keressen eladó lakást négy egyszerű lépésben. Csupán 2 perc, kötelezettségek nélkül!

Szűkítse a eladó lakások
listáját
Válassza ki a megfelelő
eladó lakást
Írjon a hirdetőnek
Várjon a visszahívásra