Eladó lakás Komárom 31 616 000 Ft

Leírás

Íme egy igazán innovatív termék a lakáspiacon!!!

Költözzön vagy fektessen be Komárom központjában, összesen 121 lakásos, egyedien újragondolt komplexumba. Az épület a hajdani komáromi Gyermekvárosból alakul át újépítésű lakó paradicsommá az 1.sz.főút menti Mártírok úton.
A, B, és C lakóépületek tartalmazzák majd a 121 db lakást.
Az A épületben a 96 lakáson kívül üzletek kapnak még helyet, mely sorompóval lesz elzárva a lakó területtől.
A négyszintes tömböket A2, A3, A4 az északi és a déli oldalon egy-egy földszintes épületrész fogja közre. Így ott belső átrium jellegű udvarok alakulnak ki. A lakások többségükben kis alapterületűek, garzon és nappali+ 1 hálószobás kialakítással, 32 és 42 m2 alapterülettel. A földszintiek terasszal és kertkapcsolattal rendelkeznek, vagy a közös kert felé, vagy a belső átriumos udvarok felé. Az emeleti lakások franciaerkéllyel készülnek, de a meglévő loggiák is megmaradnak.
Mindegyik tömbben a lépcsőházak közelében közös tárolókat helyeznek el.
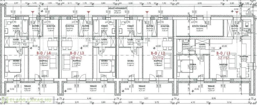
A B épületben a lakóegységek többsége nappali + 1 hálószobával rendelkezik, kb. 52 m2 alapterülettel. A földszinten terasszal, kertkapcsolattal, az emeleten loggiával. Ebben az épületben összesen 9 db lakás + tároló helyiség lesz. Egyes lakások melletti tároló helységek a terv szerint össze lesznek vonva a lakásokkal.
A C1 és C2 épületben 32 és 52 m2 közötti méretűek a lakások. A nappalik a teraszokon keresztül kertkapcsolattal rendelkeznek. Mindkét épületben 8-8 lakás kerül kialakításra.
A lakások hűtését-fűtését korszerű, energiatakarékos klíma berendezések biztosítják majd.
A telken az épületeken kívül, az azok megközelítését szolgáló belső utak, járdák, parkolók, és zöldfelületek tervezettek.
Az ár EMELT FŰTÉSKÉSZ állapotot tartalmaz, mely szerint a burkolás,szaniterek beépítése,kapcsolók,egyebek az új tulajdonos feladatai lesznek. Külön megegyezés,megbízás esetén beruházó vállalja a kulcsrakész állapot létrehozását. A kiírt vételár nem tartalmazza a lakásokhoz tartozó loggiák, teraszok és kertkapcsolatok árait.

Kert 19.000,-/m2
Terasz 120.000,-/m2
Loggia 329.000,-/m2
Előkert 5.000,-/m2
Parkoló: br.1.200.000 Ft

A lakások legkésőbb 2025. év végén kerülnek átadásra!

Ha Ön is valami mást, igazán egyedit keres, mint az eddig megszokott újépítésű lakások, akkor ez a választás garantáltan hosszú távú jó döntés lesz.
Érdeklődni: Telek Bernadett 06703677606

Lakás részletei

Ár: 31 616 000 Ft
Méret: 52 négyzetméter
Azonosító: 11367990
Irodai azonosító: 8225
Cím: Komárom
Emelet: Földszint
Építőanyag: Kérdezzen rá a hirdetőtől »
Fűtés jellege: Villany
Ingatlan állapota: Felújított
Egész szobák: 2
Fél szobák: 1

Egyéb jellemzők

  • Erkély

Így keressen eladó lakást négy egyszerű lépésben. Csupán 2 perc, kötelezettségek nélkül!

Szűkítse a eladó lakások
listáját
Válassza ki a megfelelő
eladó lakást
Írjon a hirdetőnek
Várjon a visszahívásra