Eladó lakás Kiskunlacháza 40 260 000 Ft

Leírás

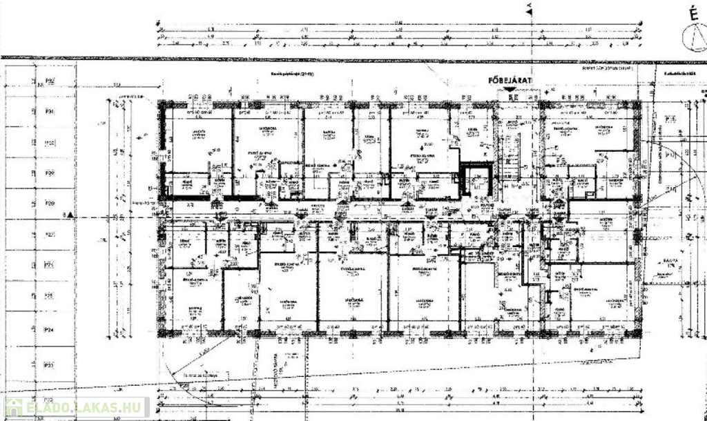
Kiskunlacháza központi részén, kínálom megvételre új-építésű 31 lakásos liftes társasház, földszinti 36,60 nm-es lakását!

Kiskunlacházán most épülő társasház földszint 8-as. lakása eladó!

A társasházban 31 db lakás épül 27 és 54 nm között három szinten,
lakások 2025 második felében kerülnek átadásra.
Nézze meg a többi lakást is a hirdetésem között!

Műszaki tartalom:
-alap vasalt beton,
-falazat phorothetm tégla
-monolit beton födém
-nyílászáró 3rtg üvegezett műanyag szerkezetű
-tető fedése beton cserép
-fűtés hőszivattyú, padlófűtés hőleadással
-15 cm Dryvit rendszerű homlokzatszigetelés
-választható hideg és meleg burkolat.
A lakás 36,60 nm, helyiségei:előtér 4,68 nm, fürdőszoba 4,92 nm, étkező/konyha 11,00 nm, nappali/lakószoba 18,10 nm.
A lakáshoz vásárolható teremgarázshely melynek ára 3.500.000 ft, vagy földfelszíni parkolóhely melynek ára 1.500.000 ft, (megvásárlása nem kötelező), valamint tároló helyiség is vásárolható.
A társasházban 31 db lakás kerül megépítésre, a földszinti és első emeleti lakások erkély nélküliek, a 2 emeleti lakások terasz kapcsolattal rendelkeznek.

Amennyiben kérdése merül fel, vagy megtekintené a lakást keressen bizalommal!

FINANSZÍROZÁS:
Nálunk mindent egy helyen intézhet:
- hivatalos ingatlanközvetítés;
- szakszerű jogi képviselet;
- profi CSOK-PLUSZ, és hitelügyintézés: 16 Bank, több mint 100 konstrukció;

A részletes adatvédelmi tájékoztató folyamatosan elérhető a gdn-ingatlan adatvedelmi oldalon.

Lakás részletei

Ár: 40 260 000 Ft
Méret: 36 négyzetméter
Azonosító: 11497331
Irodai azonosító: 379499
Cím: Pest megye
Emelet: Földszint
Építőanyag: Tégla
Fűtés jellege: Hőszivattyú
Ingatlan állapota: Kitűnő
Komfort fokozat: Összkomfort
Építési év: Új építésű
Tulajdonviszony: Saját
Kilátás: udvari
Egész szobák: 1

Egyéb jellemzők

  • Erkély
  • Garázs
  • Lift
  • Pince
  • Tároló

Térkép


Így keressen eladó lakást négy egyszerű lépésben. Csupán 2 perc, kötelezettségek nélkül!

Szűkítse a eladó lakások
listáját
Válassza ki a megfelelő
eladó lakást
Írjon a hirdetőnek
Várjon a visszahívásra