Eladó lakás Kecskemét 82 000 000 Ft

Leírás

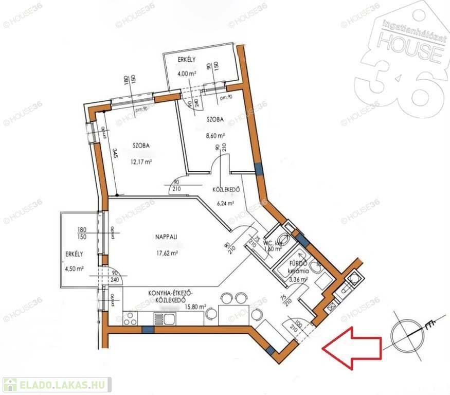
Kecskeméten, a Balaton utcában, 2015-ös építésű, szigetelt társasházban lévő, 65 m2-es, nappali +2 szobás, II. emeleti, 2 erkélyeslakás ELADÓ garázzsal, saját tárolóval!!

Jellemzők:

- 2015-ös építésű, kedvelt lakópark
- homlokzat szigetelt
- beépített konyhabútor gépekkel
- előszoba szekrény
- parkettás szobák +tágas nappali
- nagyon kedvező rezsi költség
- gáz-cirkó fűtés
- 2 db erkély + 8 m2
- klíma
- műanyag nyílászárók redőnnyel, szúnyoghálóval
- földszintről induló lift
- mélygarázs, további 6.000.000 Ft
- saját tároló további 4.000.000Ft
- alacsony rezsi
A fenti adatok tájékoztató jellegűek, felelősséget érte nem vállalok.

Referencia szám: 3621251

Lakás részletei

Ár: 82 000 000 Ft
Méret: 65 négyzetméter
Azonosító: 11601433
Irodai azonosító: 3621251-5157158
Cím: 65 nm-es lakás eladó Kecskemét
Emelet: 2. emelet
Építőanyag: Tégla
Fűtés jellege: Cirkó
Ingatlan állapota:
Komfort fokozat: Összkomfort
Építési év: 50 évesnél régebbi
Egész szobák: 3

Egyéb jellemzők

  • Erkély
  • Lift

Térkép


Így keressen eladó lakást négy egyszerű lépésben. Csupán 2 perc, kötelezettségek nélkül!

Szűkítse a eladó lakások
listáját
Válassza ki a megfelelő
eladó lakást
Írjon a hirdetőnek
Várjon a visszahívásra