Eladó lakás Kecskemét 74 990 000 Ft

Leírás

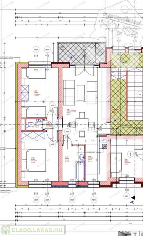
Új építésű, földszinti tégla lakás nagy terasszal Kecskeméten

Kecskemét frekventált részén, a Belváros és Máriaváros határán, eladó egy 59,35m²-es,lakóterű, nappali + 2 szobás, 1.emeleti lakás, 5,63m²-es saját terasszal, egy mindössze 5 lakásos, zárt udvaros, új építésű társasházban.

Főbb jellemzők:

Téglaépítésű társasház, tégla belső válaszfalakkal


Átadás várható időpontja: 2026. június


Korszerű hőszivattyús fűtés és fan-coil hűtés


3 rétegű hőszigetelt nyílászárók redőnnyel


15 cm vastag homlokzati szigetelés


Választható burkolatok:



Hidegburkolat 8.000 Ft/m²-ig


Melegburkolat 7.000 Ft/m²-ig




Garázsvásárlási lehetőség: 9.900.000 Ft


Zárt udvari gépkocsibeálló vásárlási lehetősége: 2.000.000 Ft
A fenti adatok tájékoztató jellegűek, felelősséget érte nem vállalok.

Referencia szám: 3620421

Lakás részletei

Ár: 74 990 000 Ft
Méret: 59 négyzetméter
Azonosító: 11563042
Irodai azonosító: 3620421-5028418
Emelet: 1. emelet
Építőanyag: Tégla
Fűtés jellege: Egyéb
Ingatlan állapota: Épülő
Komfort fokozat: Összkomfort
Építési év: Új építésű
Egész szobák: 3

Egyéb jellemzők

  • Erkély

Térkép


Így keressen eladó lakást négy egyszerű lépésben. Csupán 2 perc, kötelezettségek nélkül!

Szűkítse a eladó lakások
listáját
Válassza ki a megfelelő
eladó lakást
Írjon a hirdetőnek
Várjon a visszahívásra