Eladó lakás Kecskemét 43 100 000 Ft

Leírás

Eladó lakás, Kecskemét, Széchenyiváros

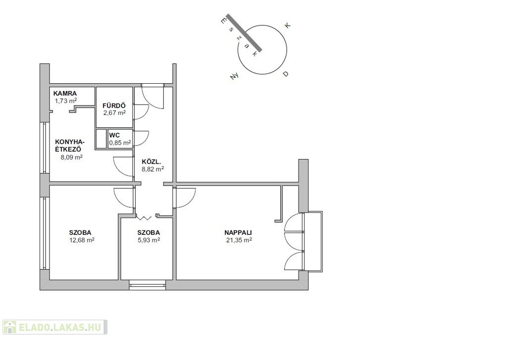
Kecskeméten a Pákozdi csata utcában 5. emeleti, 2,5 szobás, 62m2-es, erkélyes lakás magánszemélytől eladó liftes házban. Az épület a panelprogram keretében külső hőszigetelést kapott, az ablakokat műanyagra cserélték. A lakás közepes állapotú, némi felújítás ráférne. A lakással együtt megvásárolható a szintén az épületben található 21m2-es, saját víz-, és villanyórával rendelkező garázs is, irányára 15 mFt. Érdeklődni: 8-19 között.

Lakás részletei

Ár: 43 100 000 Ft
Méret: 62 négyzetméter
Azonosító: 11565376
Erkély mérete: 2.00 négyzetméter
Emelet: 5. emelet
Építőanyag: Panel
Fűtés jellege: Központi (egyedi mérővel)
Ingatlan állapota: Átlagos
Komfort fokozat: Összkomfort
Tulajdonviszony: Saját
Kert: Nincs
Egész szobák: 2
Fél szobák: 1

Egyéb jellemzők

  • Erkély
  • Garázs
  • Lift

Így keressen eladó lakást négy egyszerű lépésben. Csupán 2 perc, kötelezettségek nélkül!

Szűkítse a eladó lakások
listáját
Válassza ki a megfelelő
eladó lakást
Írjon a hirdetőnek
Várjon a visszahívásra