Eladó lakás Kaposvár, Kecelhegy, 79 950 000 Ft

Leírás

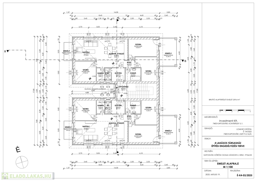
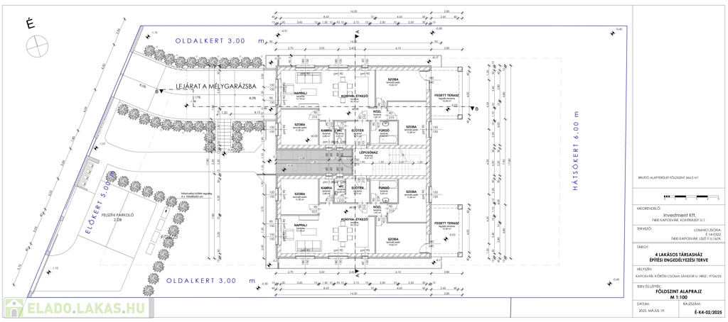
Kaposváron a Kecelhegyi városrészben, a Kőrösi Csoma Sándor utcában, új építésű, exkluzív - magas minőségben kivitelezett, korszerű építőanyagokból épülő, energiatakarékos társasházban - 4 db lakás eladó. A társasház földszintjén 2 db 97,91 m2-es lakás, míg az 1. emeleten 2 db 96,13 m2-es lakás kerül kialakításra. Minden lakásban előszoba, nappali - terasz vagy erkély - konyha, 3 szoba, fürdőszoba-wc helyiség lesz kialakítva, továbbá minden lakáshoz megvásárolható önálló tároló és egy felszíni parkoló, illetve a mélygarázsban 2 db beálló, elektromos autótöltővel. A kerítés kialakítása oly módon történik, hogy a felszíni parkolót kapunyitás nélkül is meg lehessen közelíteni. A korszerű, modern energetikájú - ezáltal alacsony rezsivel rendelkező - épület fűtése és hűtése levegő-víz hőszivattyúval lesz biztosítva, igény szerint napelemes támogatással, továbbá fan-coil rendszer szolgáltatja az igényelt hőmérsékletet a lakásban. A hőszigetelt faszerkezetű nyílászárókhoz igény szerint zsaluziák lesznek felszerelve, illetve prémium minőségű szaniterek és szerelvények, illetve csapok kerülnek beépítésre. A megállapodás szerint a konyhabútort (bútorlapból) igény esetén az eladó fogja legyártatni, amelyre a felek külön megállapodást kötnek. A lakáshoz tartozó önálló udvar mérete lakásonként 200 m2. A lakások az ideális lokáció miatt jó választás lehet családoknak és befektetőknek egyaránt - élelmiszerbolt, iskola, óvoda és buszmegálló gyalogos távolságban percek alatt elérhető. Az épület teljes kivitelezése és a műszaki átadása várhatóan 2026. IV. negyedévben történik meg.Energetikai besorolás: A
Amennyiben az ingatlan felkeltette az érdeklődését, kérem hivatkozzon a 57. számú ajánlatra! Irodánk címe: Kaposvár Irányi D. u. 9.

Lakás részletei

Ár: 79 950 000 Ft
Méret: 98 négyzetméter
Azonosító: 11570048
Irodai azonosító: 57
Városrész: Kecelhegy
Emelet: Földszint
Építőanyag: Tégla
Fűtés jellege: Geotermikus
Ingatlan állapota: Épülő
Építési év: Új építésű
Kert: Saját kert
Egész szobák: 4

Egyéb jellemzők

  • Erkély
  • Garázs
  • Klíma
  • Lift
  • Kertkapcsolat
  • Tároló
  • Kocsibeálló

Így keressen eladó lakást négy egyszerű lépésben. Csupán 2 perc, kötelezettségek nélkül!

Szűkítse a eladó lakások
listáját
Válassza ki a megfelelő
eladó lakást
Írjon a hirdetőnek
Várjon a visszahívásra