Eladó lakás Hévíz 108 900 000 Ft

Leírás

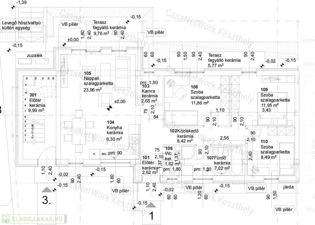
Eladó Hévízen egy 99 m2 hasznos
alapterületű, kertkapcsolatos földszinti lakás, amely egy most épülő, lapostetős, hőszivattyúval ellátott, négylakásos társasházban található. Várható
átadás 2022 év vége. Az ingatlan Hévíz egregyi részén
helyezkedik el, gyönyörű panorámával a Keszthelyi-fennsíkra, Hévízi-tótól 1900
m-re.

A társasházhoz tartozó közös
használatú telek összterülete 777 m2, melyből ehhez a lakáshoz 112 m2 saját
használatú kert tartozik. Az épülethez, telken belül összesen 6 parkolóhely
lesz kialakítva.A modern kialakítású lakás
alapterülete 89 m2 (amerikai konyhás nappali, 3 hálószoba, fürdőszoba, wc, közlekedő), amelyhez egy
15,5 m2-es terasz és egy 4,5 m2-es tároló is tartozik. Az ár tartalmazza a telken belüli udvari beállót és a külön bejáratú tárolót is.A tervek szerint a szobák és a
nappali burkolata laminált szalagparketta lesz, a többi helyiség kerámialapos,
a vizes blokkok pedig csempeburkolattal kerülnek kivitelezésre, mely
elképzeléseket a jelenlegi szakaszban a leendő tulajdonos még igénye szerint
módosíthat.Az épület fűtése, használati
melegvíz-ellátása, valamint hűtése energiahatékonysági szempontok miatt levegős
hőszivattyúval megoldott. A hőszivattyúban felhasznált minden egyes kilowatt
villamos energia 3-4 kilowatt megújuló, a levegőből kinyert hőenergiát jelent –
ez pedig 300-400%-os hatékonyságjavulásnak felel meg. Ehhez még hozzájárul az
ingatlanra tett 15-cm-es hőszigetelés és a minőségi nyílászárók.



































A komplett közműhálózat kiépített: elektromos áram,
víz, szennyvíz.
A lakás állandó lakhatásra és
befektetésként is kiválóan alkalmas a város turisztikai vonzereje és hírneve
miatt.Részletesebb felvilágosításért, vagy a személyes megtekintésért hívjon a megadott telefonszámon, vagy forduljon a KESZTHELYI irodánkhoz, Keszthely, Fejér Gy. 2. 
Finanszírozási elképzeléséhez partnerek vagyunk! Díjmentes, bankfüggetlen, személyre szabott ajánlattal várjuk megkeresését!

Lakás részletei

Ár: 108 900 000 Ft
Méret: 99 négyzetméter
Azonosító: 11030726
Irodai azonosító: 183102825
Emelet: Földszint
Építőanyag: Tégla
Ingatlan állapota: Szerkezetkész
Egész szobák: 4

Így keressen eladó lakást négy egyszerű lépésben. Csupán 2 perc, kötelezettségek nélkül!

Szűkítse a eladó lakások
listáját
Válassza ki a megfelelő
eladó lakást
Írjon a hirdetőnek
Várjon a visszahívásra