Eladó lakás Győr 74 900 000 Ft

Leírás

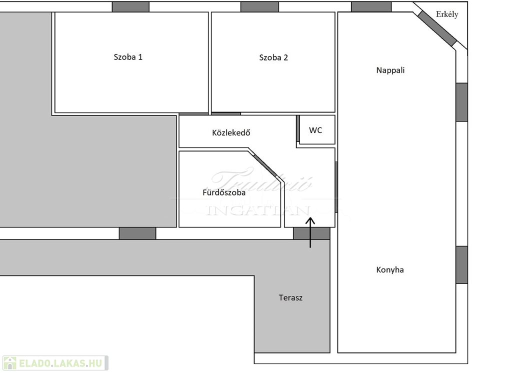
Győr Sziget frekventált részén, a Belváros kulturális és kereskedelmi központjától pár percre eladó egy 73 m²-es, nappali + 2 szobás téglaépítésű lakás. Az első emeleten található, 2002-ben kialakított lakást 2020 as években prémium minőségben teljes körűen felújították.
CSAK A TRADÍCIÓ INGATLAN KÍNÁLATÁBAN!

Energiahatékonyság és okosotthon: A lakás korszerű épületautomatizálási rendszere összehangoltan szabályozza az árnyékolást, a hővisszanyerős szellőzést, a radiátoros és elektromos padlófűtést, valamint a hűtést. Az automatizálás nemcsak kényelmet nyújt, hanem az iparági kutatások szerint átlagosan 5–15 %-kal is csökkentheti az energiafelhasználást. A 8 cm-es külső hőszigetelés, a műanyag nyílászárók és a precíz hővisszanyerős rendszer segítik a rezsi alacsony szinten tartását. A rendszer távolról vezérelhető, a beállítások okostelefonról módosíthatók, így mindig ideális hőmérséklet és friss levegő biztosítható.

Kültéri életterek: A 2 m²-es erkélyről az utcára, a 7,5 m²-es fedett teraszról pedig a belső udvarra nyílik kilátás. A terasz ideális reggeli kávéhoz, olvasósaroknak vagy akár kisebb kerti sütögetéshez. A lakáshoz tartozó zárt udvari parkolóban saját autóbeálló és tároló könnyíti meg a mindennapokat.

Elrendezés: A közlekedőből minden helyiség külön nyílik. A tágas nappali étkező és konyha közvetlenül kapcsolódik az erkélyhez; a két hálószoba igény szerint gyermek- vagy dolgozószobaként is használható. A bejáratnál lévő szeparált terasz pihenőhelynek is alkalmas.

Felszereltség:
• Konyha: prémium VINYL burkolat, tömörfa konyhabútor, fekete gránit munkalap, lacobel üveg hátfal, beépített Bosch gépek, borhűtő, GREE inverteres klíma.
• Fürdőszoba és külön WC: mennyezetig érő greslap burkolat, kád és zuhany, elektromos padlófűtés, kombinált radiátor (elektromos vagy gázcirkó), egyedi, fűthető tükör, integrált szagelszívás.
• Szobák: VINYL burkolat, beépített IKEA gardróbszekrények.
• Előszoba: egyedi beépített szekrény, VINYL burkolat.
• Extra: automata alumínium redőnyök, hangulatvilágítás, riasztórendszer, alacsony közös költség (jelenleg 7 000 Ft).

Komfort és rezsi: A hővisszanyerős szellőzőrendszer folyamatos friss por és pollenmentes levegőt biztosít, a fűtés és hűtés pedig a mindenkori igényhez igazodik. A gépészet és az automatizált vezérlés együttese segít optimalizálni az energiafelhasználást és minimalizálni a rezsiköltségeket. Hasonló okosotthon-felszereltség még manapság is leginkább csak az új építésű lakások felső kategóriájánál jellemző, így ez a lakás kiemelkedő a korosztályában.

Lokáció és szolgáltatások: Néhány perc sétára találhatók boltok, iskolák, óvodák, bölcsődék, buszmegállók és rekreációs lehetőségek. A Belváros közelsége élénk kulturális és gasztronómiai kínálatot biztosít, miközben a Sziget városrész zöld területei megőrzik a nyugalmat.

Vételi lehetőség: Az ingatlan igény szerint bútorozottan is megvásárolható.
További információért és megtekintésért kérem, keressen bizalommal.

A TRADÍCIÓ INGATLANIRODA AZ ALÁBBI SZOLGÁLTATÁSOKKAL ÁLL AZ ÜGYFELEK RENDELKEZÉSÉRE:
- LAKOSSÁGI ÉS IPARI INGATLANOK ÉRTÉKESÍTÉSE ÉS BÉRBEADÁSA
- DÍJMENTES PÉNZÜGYI TANÁCSADÁS, HITELÜGYINTÉZÉS, LAKÁSHITELEK, ÁLLAMI TÁMOGATÁSOK / CSOK, ÁFA / , BABAVÁRÓ HITEL, SZEMÉLYI KÖLCSÖN, LAKÁSTAKARÉK, BIZTOSÍTÁS
- JOGI HÁTTÉR, ADÁSVÉTELI SZERZŐDÉSEK KÉSZÍTÉSE KEDVEZŐ FELTÉTELEKKEL
- ENERGETIKAI TANÚSÍTVÁNY KÉSZÍTÉSE
- INGATLAN ÉRTÉKBECSLÉS
AMENNYIBEN GYŐRI, ILL. GYŐR KÖRNYÉKI, ELADÓ VAGY KIADÓ INGATLANNAL RENDELKEZIK, KÉREM HÍVJON!

Lakás részletei

Ár: 74 900 000 Ft
Méret: 73 négyzetméter
Azonosító: 11573340
Irodai azonosító: 122692
Cím: Győr
Emelet: 1. emelet
Építőanyag: Kérdezzen rá a hirdetőtől »
Fűtés jellege: Cirkó
Ingatlan állapota:
Egész szobák: 3

Egyéb jellemzők

  • Erkély

Így keressen eladó lakást négy egyszerű lépésben. Csupán 2 perc, kötelezettségek nélkül!

Szűkítse a eladó lakások
listáját
Válassza ki a megfelelő
eladó lakást
Írjon a hirdetőnek
Várjon a visszahívásra