Eladó lakás Győr 67 990 000 Ft

Leírás


Győr-Belvárosától pár perces autóútra, Szitásdomb új kialakítású részén új építésű 29 lakásos társasházban különböző alapterületű lakások eladók.

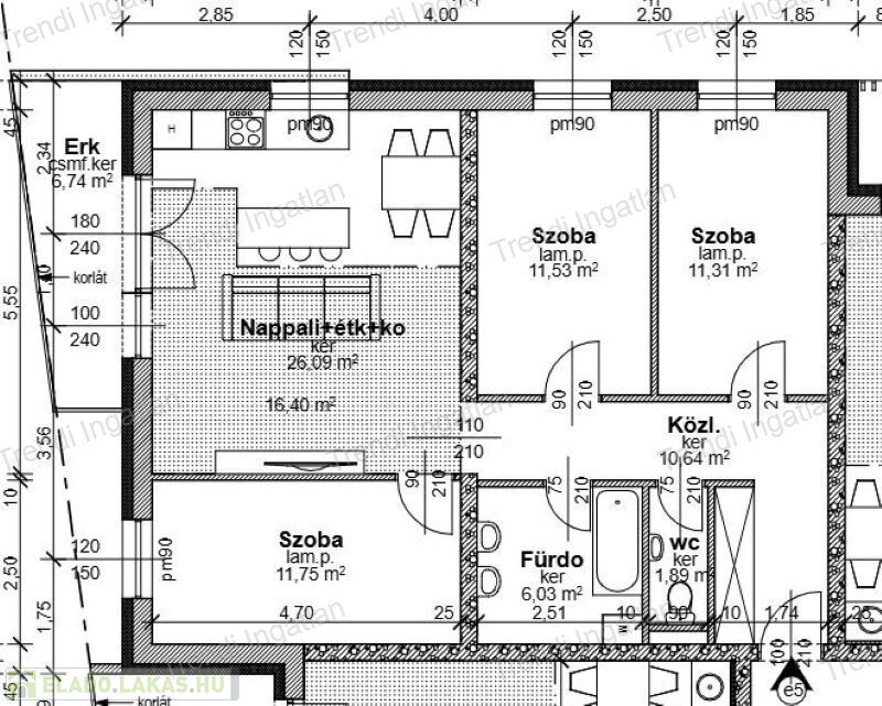
Az 1. emeleten  található 79,24 nm-es ingatlanban amerikai konyhás nappali, 3 szoba, fürdőszoba, külön WC, közlekedő, előtér kerül kialakításra. A nappaliból 6,74 nm-es erkély nyílik. 

Az ingatlan fűtéskész ára: 67.990.000 Ft. Kulcsrakész befejezés kérhető.

Gépkocsibeálló ára: 1.700.000 Ft

Lehetőség van tároló vásárlására is, ára: 1.500.000 Ft-tól.

A társasház Szitásdomb új lakóparkjában épül. A földszinti lakások terasszal, az emeleti lakások erkéllyel/terasszal rendelkeznek. A társasház zárt udvarán felszíni parkolók kerülnek kialakításra. A társasház 30 cm-es falazóelemből, 20 cm-es homlokzati hőszigeteléssel épül. A műanyag, hőszigetelt nyílászárók 6 légkamrásak, 3 rétegű üvegezéssel rendelkeznek. Az ár tartalmazza a redőny előkészítését lefutókkal, az elektromos kiépítés felár ellenében kérhető. A társasház fűtését hőszivattyú biztosítja. Lakásonként egyedi hőmennyiségmérő, a fürdőszobában törölközőszárító radiátor kerül. Klímakiépítés igény esetén felár ellenében kérhető.

A társasház átadásának tervezett időpontja: 2026 nyár

Bővebb információkért keressen bizalommal!

Hétköznap és hétvégén is várom hívását!

A hirdetésben feltüntetett képek illusztrációk.

Lakás részletei

Ár: 67 990 000 Ft
Méret: 79 négyzetméter
Azonosító: 11560747
Irodai azonosító: 196400767
Emelet: 1. emelet
Építőanyag: Tégla
Ingatlan állapota: Kitűnő
Komfort fokozat: Összkomfort
Építési év: Új építésű
Egész szobák: 4

Egyéb jellemzők

  • Lift

Így keressen eladó lakást négy egyszerű lépésben. Csupán 2 perc, kötelezettségek nélkül!

Szűkítse a eladó lakások
listáját
Válassza ki a megfelelő
eladó lakást
Írjon a hirdetőnek
Várjon a visszahívásra