Eladó lakás Győr, Nádorváros, 54 500 000 Ft

Leírás

A társasház 1995-ben épült, összesen 7 lakás került kialakításra.
Itt kínálom ezt a remek elosztású, két oldalról benapozott ingatlant.

N: 39,79 nm
Brutto alapterülete 45,04 nm,

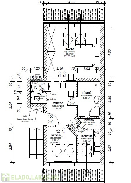
ELOSZTÁS:
Szoba, étkező, külön konyha, kamra, közlekedő, dolgozószoba/gardróbhelyiség,
fürdőszoba zuhannyal, külön WC.

A lakás középpontja az étkező, innen nyílnak a helyiségek. Balra a szoba, jobbra egymás mellett a konyha, a spejz/kamra és a dolgozó.
A szobát a délelőtti napsütés éri, a konyhát és a dolgózó/gardróbszobát a délutáni.
A tágas fürdőszoba zuhanykabinos, itt kapott helyet a mosógép is és egy tárolószekrény is.

FŰTÉS:
Sanier Duval gázkazánnal történik, hőleadás radiátorokkal.

NYÍLÁSZÁRÓK:
fa tetőtéri ablakok, hővédő rolóval ellátottak.

BURKOLATOK:
A szobákban parketta, a többi helyiségben járólap.

Közös költség:............ Ft/hó.

Jöjjön, nézzük meg együtt!

Lakás részletei

Ár: 54 500 000 Ft
Méret: 40 négyzetméter
Azonosító: 11562293
Cím: Buda utca
Városrész: Nádorváros
Építőanyag: Tégla
Fűtés jellege: Cirkó
Ingatlan állapota:
Építési év: 21-50 éves
Bútorozott: Bútorozott
Kert: Nincs
Egész szobák: 1
Fél szobák: 1
Nappalik: 1

Egyéb jellemzők

  • Erkély
  • Klíma
  • Lift
  • Kertkapcsolat
  • Kocsibeálló

Így keressen eladó lakást négy egyszerű lépésben. Csupán 2 perc, kötelezettségek nélkül!

Szűkítse a eladó lakások
listáját
Válassza ki a megfelelő
eladó lakást
Írjon a hirdetőnek
Várjon a visszahívásra