Eladó lakás Győr 48 447 500 Ft

Leírás

Győr városának egyik legdinamikusabban fejlődő területén, Szitásdombon kínáljuk eladásra ezt az új, kiváló állapotú lakást, amely ideális választás lehet akár családok, akár befektetők számára.

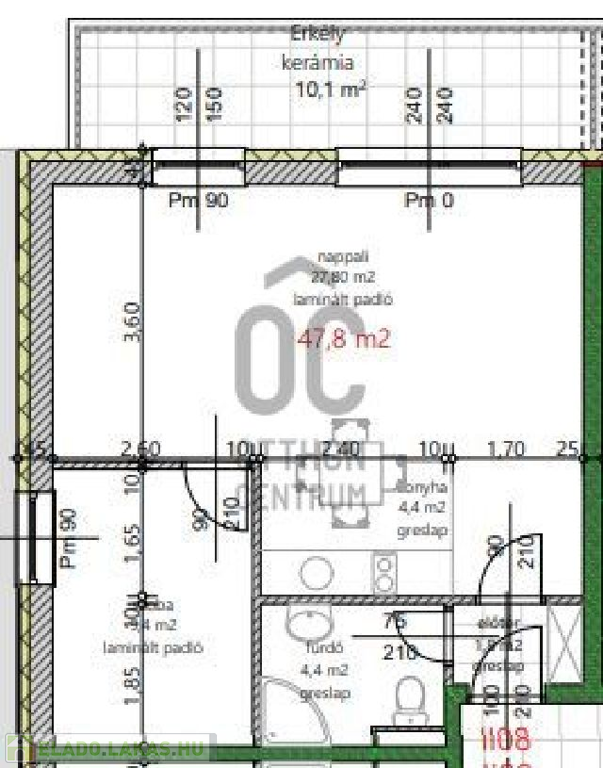
Az ingatlan alapterülete 47,8 négyzetméter, amely három kényelmes szobát rejt magában, így bőséges teret biztosít a mindennapi élethez.

A lakás fürdőszobája modern kialakítású, amely a mai kor elvárásainak megfelelően lett megtervezve. Az ingatlan különlegessége az erkély, amelynek mérete 10,1 négyzetméter, így tökéletes helyszínt nyújt a pihenésre, baráti összejövetelekre vagy akár egy reggeli kávéra a friss levegőn.

A fűtés hőszivattyús padlófűtés, a melegvizet házközponti gázkazán szolgáltatja, amely nemcsak energiatakarékos megoldást kínál, hanem a fenntartási költségek csökkentését is lehetővé teszi. Az épület energetikája A+!

A lakás elhelyezkedése Szitásdombon nemcsak a csendes, nyugodt környezet miatt vonzó, hanem a város közelsége miatt is. Győr belvárosa mindössze néhány percnyi autóútra található, így könnyedén elérheti a város szívét, ahol számos üzlet, étterem és kulturális lehetőség várja Önt. A környék biztonságos, családbarát, így ideális választás lehet gyermekes családok számára is.

A közlekedési lehetőségek is kiemelkedőek, hiszen a város tömegközlekedési hálózata jól kiépített, így könnyedén elérheti a város más pontjait.

Nyitott beállóhely ára: 2 M Ft

Bízom benne, hogy ez a lakás elnyeri tetszését, és szívesen válaszolok kérdéseire, hogy segíthessünk Önnek a legjobb döntés meghozatalában.
Projekt bemutatása

Újépítésű ingatlanok Szitásdombon Győrtől 5 percre, teljesen újépítésű környezetben!

A ház 33 lakásos, 2 szintes, terasszal vagy erkéllyel felszerelt.

A lakások hőszivattyús padlófűtéssel és házközponti kondenzációs gázkazánnal ellátottak. Lakásonként egyedi mérőórával. Szigetelés az épületen 15 cm, nyílászárók 3 rétegűek.

Lakás részletei

Ár: 48 447 500 Ft
Méret: 48 négyzetméter
Azonosító: 11524906
Irodai azonosító: P4649-1-01-02-008
Cím: Győr-Moson-Sopron megye Szitásdomb
Építőanyag: Kérdezzen rá a hirdetőtől »
Ingatlan állapota: Átlagos
Egész szobák: 2

Egyéb jellemzők

  • Lift

Így keressen eladó lakást négy egyszerű lépésben. Csupán 2 perc, kötelezettségek nélkül!

Szűkítse a eladó lakások
listáját
Válassza ki a megfelelő
eladó lakást
Írjon a hirdetőnek
Várjon a visszahívásra