Eladó lakás Győr 47 350 000 Ft

Leírás

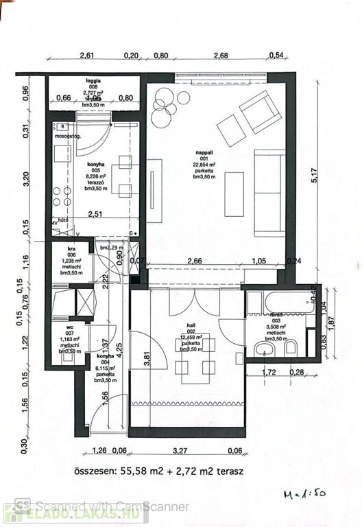
Győr-Belvárosának rendkívül kedvelt részén, Baross úttól, Széchenyi tértől pár perces sétatávolságra, a Munkácsy Mihály úton, rendezett, zárt belső udvarral, kerttel rendelkező, hangulatos, liftes társasház 1. emeletén, konyha – étkező + nappali + 1 hálószobás, továbbá különálló fürdőszobával, különálló WC-vel, különálló kamrával, 2,73 m2-es ERKÉLLYEL felszerelt, 55 m2 hasznos alapterületű, alacsony rezsijű téglalakás, saját 3,4 m2-es TÁROLÓVAL, Zsinagógára való rálátással eladó.

Ár: 47.350.000 Ft.
Érd.: +36-20/573-76-77

A lakás felújítandó állapotú, teljes korszerűsítést igényel!

Lakás részletei

Ár: 47 350 000 Ft
Méret: 56 négyzetméter
Azonosító: 11600315
Irodai azonosító: 125110
Cím: Győr
Emelet: 1. emelet
Építőanyag: Kérdezzen rá a hirdetőtől »
Fűtés jellege: Cirkó
Ingatlan állapota: Felújítandó
Egész szobák: 2

Egyéb jellemzők

  • Erkély

Így keressen eladó lakást négy egyszerű lépésben. Csupán 2 perc, kötelezettségek nélkül!

Szűkítse a eladó lakások
listáját
Válassza ki a megfelelő
eladó lakást
Írjon a hirdetőnek
Várjon a visszahívásra