Eladó lakás Gyömrő 64 500 000 Ft

Leírás

Figyelem! Eladó Jó állapotú TársasháziLakás!
Ne hagyja ki ezt a fantasztikus lehetőséget!

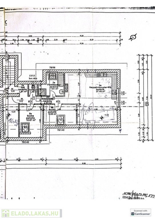
Eladó egy 74 négyzetméteres, 2 + 2 félszobás, Ytong falazó anyagból épült emeleti sorházi lakás, délkeleti fekvésű, amely kiváló választás családoknak vagy fiatal pároknak!

Főbb jellemzők:
Terület: 74 m²
Szobák: 2 + 2 félszoba
Állapot: Jó állapotú, rövid időn belül költözhető
Közlekedés: Kiváló közlekedési lehetőségek
Infrastruktúra: Jó, közel a szükséges szolgáltatásokhoz, Óvoda 1 percre található!

A társasház, rendezett, tiszta, kamerarendszerrel felszerelt.

Ez a lakás ideális otthont nyújt a kényelmes élethez, ahol minden szoba tágas és világos.

A TEHERMENTES ingatlan kizárólag ingatlanközvetítővel, előre egyeztetett időpontban megtekinthető.

Amennyiben hirdetésem felkeltette érdeklődését, várom hívását a hét bármely napján! tp

INGYENES hitel tanácsadás! CSOK+ Ügy intézés!
BANKFÜGGETLEN hitelcentrumunk minden elérhető bank és hitelintézet ajánlatát versenyezteti az Ön kedvéért, ráadásul DÍJMENTESEN.
Önnek nincs más dolga, mint elbeszélgetni munkatársunkkal, aki a hallott információk alapján versenyre hívja a bankokat, hogy Ön hosszú távon is a legjobb konstrukciót kaphassa. A legjobb ajánlatokból végül Ön választhatja ki a nyertest.
Munkatársaink sokéves szakmai tapasztalattal várják Önt, előre egyeztetve akár a normál munkaidő után is.

Lakás részletei

Ár: 64 500 000 Ft
Méret: 74 négyzetméter
Azonosító: 11531225
Irodai azonosító: 382244
Cím: Bajcsy-Zsilinszky út
Emelet: 1. emelet
Építőanyag: Kérdezzen rá a hirdetőtől »
Fűtés jellege: Cirkó
Ingatlan állapota:
Komfort fokozat: Összkomfort
Építési év: 21-50 éves
Tulajdonviszony: Saját
Kilátás: panorámás
Egész szobák: 2
Fél szobák: 2

Egyéb jellemzők

  • Erkély
  • Garázs
  • Lift
  • Pince
  • Tároló

Térkép


Így keressen eladó lakást négy egyszerű lépésben. Csupán 2 perc, kötelezettségek nélkül!

Szűkítse a eladó lakások
listáját
Válassza ki a megfelelő
eladó lakást
Írjon a hirdetőnek
Várjon a visszahívásra