Eladó lakás Érd 68 040 000 Ft

Leírás

Kedves Ingatlankereső!

Ajánlom figyelmébe ezt a most épülő Modern Társas házi lakást, az Aréna Rezidensben!

Ez a társas-ház nem csupán egy ingatlan – ez egy életforma. A prémium kivitelezés, a természet közelsége és a modern technológia találkozása.

A fejlesztő kiemelten kezeli a projektet, a tőle megszokott magas minőségben épít, számos referenciával rendelkezik.


Igazi ritkaság a piacon!

Az Otthon megtalálása egy Jó érzés, amikor megérkezik és megszületik a döntés, ami valóban majd egy Új Életre ad lehetőséget és egy Új Otthont jelent.

Fontos, hogy az ingatlanvásárlás hosszú távon is értékálló befektetés legyen!

A kivitelező törekszik arra,hogy magas minőségű,egyedi kivitelezésű ingatlant alkosson ezen a nem mindennapi környéken!!

Az Ön dolga „csupán” a színek, burkolatok kiválasztása, hogy a munkálatok végeztével valóban otthon érezhesse magát!

Szívesen lakna Érd egyik legjobb részén, inkább elkerülné a zsúfolt, panel lakótelepeket és nem szeretne egy 40 éves társasházban lévő lakás felújításával vesződni, ez a 2026 épülő társas-ház kiváló választás Önnek!

Befektetőknek és igazából minden korosztály számára megfelelő, minden igényt kielégít.

Itt ötvözve van az új, modern dizájn a mai igényeknek megfelelő kialakítással, az Ön álmai otthonának megvalósításához!

Az energiahatékonyság jegyében HŐSZIVATTYÚ rendszert alkalmaznak, mely nagyon ENERGIATAKARÉKOS FELHASZNÁLÁST tesz lehetővé.

Műszaki leírás:
A lakások felszereltsége alapárra vonatkozóan:

bejárati ajtó:
(nem változtatható) műanyag vagy fém bejárati ajtó és 3 db kulccsal.

belső nyílászárók:
utólag elhelyezhető laminált felületű (szín választható), bevéső zárral, normál matt króm kilinccsel, és küszöb nélkül kerül beépítésre. (mintadarab). Amennyiben a vevő nem kéri, vagy más ajtó beépítését kéri, akkor az alábbi árakon kerülnek elszámolásra a belső nyílászárók:

75x210 beltéri ajtó 49.000.- bruttó

90/210 beltéri ajtó 49.000.- bruttó

burkolatok:
(változtatható)A nappali és a hálószobák laminált parketta padlóburkolattal, az egyéb helyiségek hálósan rakott mázas kerámialap padlóburkolattal készülnek. A WC-k és fürdőszobák falain 2,20 m magasságig, a konyhákban a tervezett beépítésnek megfelelően az alsó és felső elemek közti 60 cm magasságú sávban készül (mindenhol hálós formációban rakva) csempeburkolat. Az alábbi m2 anyag áru burkolatokat tartalmazza a lakás vételára:

-a burkolási munkadíjban a 30 cm x 30 cm és a 30 cm x 60 cm burkolat van az árban.

Egyedi ár képzése van az extra csempe vagy burkolat burkolási munkálatokban. Külön m2 ár munkadíj burkolattal megegyezés szerint.
- falfülke
- metro csempe
- extra méretű csempe Pl 120 x 60 , 60 x 60 stb. plusz elszámolást igényel

Ha a parketta helyett hideg burkolat lenne választva akkor annak a m2 plusz munkadíj és anyagköltség 18.000 Ft / m2 nettó összeg

hidegburkolatok:
– fali csempe: 8000.- bruttó
– padló padlóburkolat: 8000.- bruttó
– terasz: fagyálló kerámia burkolat egységes beruházó által biztosított
melegburkolatok:
– laminált parketta,: 6000.- bruttó

Többlet hidegburkolási munka esetén a segédanyagok költségét és a burkolás munkadíját is felszámoljuk.
belső ablakpárkányok:műanyag párkányok

festés-mázolás:
– falfelületek: alapozás, 2x glettelés, 2x diszperziós falfestés fehér színben (változtatható, színtől függően felár ellenében)
szellőzők:
az ablakkal nem rendelkező WC-k ill. fürdőszobák elektromos szellőzővel készülnek a tetőre vagy udvarba kivezetve

Nyitott gépkocsi beálló :
- 3.200.000 Ft + áfa 27 %

Teremgarázst minden lakáshoz kötelező megvásárolni

Teremgarázs hely vételára::

5.000.000 Ft + áfa 27 %

- tároló vételára 550.000 Ft + áfa / m2 27 %

Méretük átlagosan 4-6 m2


vízellátás:
(változtatható) A lakás vételára az alábbi szaniter árakat tartalmazza:

– WC (fehér wc csésze falba építhető geberit öblítőtartállyal)

_ Alföldi Bázis wc mélyöblítésű 15.000 Ft-ig bruttó

– Mosdó (fehér) alföldi Kézmosó 40 cm x 25 cm 10.000 Ft-ig bruttó

– Mosdó csaptelep Kludi egykaros 15.000 Ft-ig bruttó

– Kád 170-es akril (fehér) 35.000 Ft-ig bruttó

– Kádtöltő csaptelep Kludi egykaros 25.000 Ft-ig bruttó

– Zuhany kialakítás egyedi megegyezés szerint

(a fenti szaniterek és csaptelepek típusainak változtatási jogát a beruházó fenntartja, de csak azonos vagy jobb minőségűre cserélheti)

Többlet szaniter beépítése esetén a segédanyagok költségét és a beépítés munkadíját is felszámoljuk.

Mosógép csatlakozási lehetőség minden lakás fürdőszobájában biztosított.

- minden lakáshoz külön víz almérő van

fűtés a lakásban :
- Egyéni hőszivattyús rendszer. (Kültéri egység a teraszokon lesz elhelyezve.)

Fűtés a hőszivattyús lakásoknál vagy gáz fűtés

elektromos hálózat:
A lakásokhoz 1 fázisú 32 A –es mérő tartozik. (3 fázisú mérő felszerelését külön költség felszámítása mellett lehet igényelni). A mérő a lépcsőházi mérőszekrényben kerül elhelyezésre. A vételár magába foglalja az elektromos mérőket.

A H tarifás mérőt külön kell majd igényelni a vevőnek ha készen van a hőszivattyús rendszer.

Az áramkörök falhoronyban vezetett Mü-III. védőcsőbe húzott Mcu 1,5 rézvezeték eken haladnak, kivéve a tűzhely áramkörét, amelyhez Mcu 2,5 rézvezetéket alkalmazunk. A mennyezet világításhoz, a födémhez rögzítve Mbcu vezetéket építünk be.

Az alapár fehér színű Legrand Niloé kapcsolókat és dugaszoló aljzatokat tartalmaz, a szerződés mellékletét képező helyiség könyvben szereplő mennyiségben.


- előtér 1 db konnektor, 1 db kapcsoló, 1 db mennyezeti lámpa kiállás

- fürdőszoba 3 db konnektor, 2 db lámpa kapcsoló, 1 db fali lámpa, 1 db mennyezet lámpa

- tároló 2 db konnektor, 1 db mennyezet lámpa

- nappali 8 db konnektor 2 db mennyezet lámpa, 3 db kapcsoló 1 db tv kiállás

- konyha 4 db konnektor, 1 db tűzhely bekötés

- szoba 4 db konnektor 1 db mennyezet lámpa, 1 db tv kiállás

- erkély 1 db konnektor 1 db mennyezet lámpa, 1 db kapcsoló

A további plusz szerelvények darabonként 25.000 Ft plusz költségbe kerül.

Lámpák felszerelése darabonként 5.000 Ft plusz költségbe kerül.

Led világítás extra villanyszerelés, riasztó további megegyezés tárgyát képezi, plusz költsége van.

A világítótestek csak a közös tulajdonú épületrészekben (lépcsőház, garázsszint, lépcsőházi bejárat külső világítása) és az erkélyeken kerülnek beépítésre.

A világítótestek kiállásai vezeték csatlakozókkal ellátott

A lakás alapfelszereltsége nem tartalmazza:

a konyhabútort és a beépített szekrényt.
a mosogató csaptelepet és lefolyó szifont.
a világítótesteket
klímát
A tervektől és a műszaki tartalomtól eltérő igények kielégítésére -amennyiben azt az adott időpontban az építkezés fázisa lehetővé teszi- külön megállapodás szerint, költség egyeztetéssel van lehetőség. A változást ábrázoló tervrajzok alapján árajánlat készül, mely a vevő aláírása után megrendelésre válik.

A hírdetésben megjelent külső látványtervek az engedélyezett ház tervei. Azaz a leendő végleges formát tükrözik.

Ez az ingatlanok részleteiben igen gazdag elgondolás szerint lesznek megépítve. Tapasztalt a kivitelező cég, így megannyi referencia munkával igazolható, hogy a megálmodástól a megvalósításhoz vezető út nem csak egy illúzió. Az építkezés során szigorúan csak a legmagasabb minőségű anyagokat fogja a kivitelező felhasználni, hogy igazán exkluzív otthont hozzon létre.
Mindemellett számítunk az Ön igényeinek bevonásaira is, burkolatok és szaniterek és egyéb kiegészítők tekintetében.

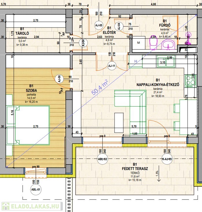
B 1-ES Lakás

- TÁRSASHÁZI ALAPÍTÓ OKIRAT, SAJÁT ALBETÉT LAKÁSONKÉNT

Kíváncsi?

Amennyiben az ajánlatom felkeltette az érdeklődését, kérem keressen telefonon.

Szép napot és sikeres vásárlást kívánok Önnek!

Lakás részletei

Ár: 68 040 000 Ft
Méret: 50 négyzetméter
Azonosító: 11568816
Emelet: Földszint
Építőanyag: Tégla
Ingatlan állapota: Kitűnő
Komfort fokozat: Összkomfort
Egész szobák: 2

Egyéb jellemzők

  • Erkély
  • Garázs
  • Lift
  • Kertkapcsolat
  • Tároló
  • Kocsibeálló

Így keressen eladó lakást négy egyszerű lépésben. Csupán 2 perc, kötelezettségek nélkül!

Szűkítse a eladó lakások
listáját
Válassza ki a megfelelő
eladó lakást
Írjon a hirdetőnek
Várjon a visszahívásra