Eladó lakás Érd 189 530 000 Ft

Leírás

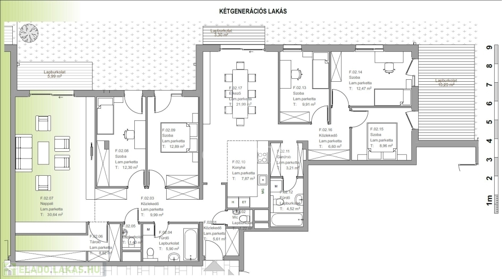
KÉTGENERÁCIÓS LAKÁS!

MAGAS MŰSZAKI TARTALOM, IGÉNYES KIVITELEZÉS, AA+ LAKÁSOK ELADÓK ÉRDLIGET LEGSZEBB RÉSZÉN.

2 NAPPALI + 5 SZOBA, 164.25 m2; erkély: 20 m2, első emeleti lakás
Ár: 189.530.000.- Ft.

Érd központi részén, de mégis kertvárosi utcában csendes környezetben, végig aszfaltúton megközelíthető helyen eladó egy nettó 164.3 m2-es kétgenerációs duplakomfortos földszinti lakás ELADÓ!

CSOK ÉS CSOKHITEL IGÉNYBE VEHETŐ!

Felosztása a következőképpen alakul: fürdőszoba (5.9 nm, 4.52 nm), amerikai konyhás nappali-étkező (29.86 nm, 30.64 nm), közlekedő (9.99 nm, 6.60 nm), 5 szoba (12.30 nm, 12.89 nm, 9.91 nm, 12.47 nm, 8.96 nm ), wc helyiség (1.22 nm, 1.40 nm).

Parkolás: teremgarázsban felszíni beálló külön albetétként megvásárolható.

Rövid műszaki ismertető:
Energetikai besorolás: AA+

A 4 szintes (P+FSZT.+IEM.+IIEM) társasház 11 db lakást tartalmaz amiből 2 db lakás kétgenerációs kialakítású. A lakások rendelkeznek kert, erkély és tetőterasz valamelyikével. Továbbá lakáson belüli / kívüli tároló lehetőséggel. Akadálymentes bejutás az épületbe.

Felszereltség:
A Fszt.-i lakások padlótemperálás kialakításúak. Hanggátló biztonsági lakásbejárati ajtók. A külső nyílászárók műanyag szerkezetűek, bukó - nyíló kivitelben, 3 rétegű hőszigetelésű üvegezéssel. Redőny előkészítés/ beszerelés igény szerint.
Belső burkolás a vevő igénye szerint. Alapkínálatból vagy egyedi igény alapján választható belső ajtók. Lakáselválasztó hang gátló falak kerülnek kialakításra.
Lakásonként egyedi fogyasztásmérők (hidegvíz, melegvíz, fűtés, áram).
Helyiségenként digitálisan vezérelt hőszivattyús hűtés/fűtés.

Extrák:
- Okosotthon alaphálózat, igény szerint bővíthető
- Internetről távolról telefonnal vezérelhető hűtés/fűtés lehetőség
- Lakásonként videokaputelefon
- Közösségi terekben kamerahálózat (CCTV)
- Teremgarázs elektromos gépkocsi töltési lehetőség
- Szintek közötti akadálymentes közlekedés személyfelvonóval
- Teremgarázsban közösségi kerékpár tároló


Eladó lakások:
-F.01 lakás 78,79 m2; terasz: 8,82+12.64 m2; kert: 30,78 ár: ELKELT!
-F.02 lakás 164,3 m2; terasz: 32,85 m2; kert: 168,36 ár: 214.060.000Ft.
-F.03 lakás 82,66 m2; terasz: 26,07 m2; kert: 152,14 ár: ELKELT
-F.04 lakás 93,64 m2; terasz: 12,32 m2; kert: 125,31 ár: 115.000.000.- Ft.
-I.05 lakás 87,3 m2; terasz: 12,64 m2 ár: ELKELT!
-I.06 lakás 164,25 m2; Erkély: 20,27 m2 ár: 189.530.000.- Ft.
-I.07 lakás 82,66 m2; erkély: 7,74 m2 ár: ELKELT!
-I.08 lakás 81,74 m2; terasz: 18,77 m2 ár: ELKELT!
-II.09 lakás 90,1 m2; terasz: 87,86 + 22,17 m2 ár: ELKELT!
-II.10 lakás 67,16 m2; terasz: 27,57 m2 ár: ELKELT!
-II.11 lakás 92,84 m2; terasz: 99,8 m2 ár: ELKELT!

Gyönyörű csendes környezet, jó levegő - kár lenne kihagyni!

A közelben buszmegálló. Óvoda, iskola, bevásárlási lehetőségek gyalogosan vagy autóval pár perc alatt elérhetők!

A kivitelező Megbízható, sok éves tapasztalattal rendelkezik, aki garantálja a kiváló minőséget garanciával!

Szüksége van hitelre? SEGÍTÜNK!
Bankfüggetlen hitel tanácsadónk díjmentesen áll az Ön rendelkezésére! Keressen bizalommal!
Ha a hirdetés felkeltette érdeklődését, várom hívását a hét minden napján.

Lakás részletei

Ár: 189 530 000 Ft
Méret: 164 négyzetméter
Azonosító: 11430344
Irodai azonosító: 342145
Cím: AA+ LAKÁSOK ÉRDLIGETEN
Emelet: Földszint
Építőanyag: Tégla
Fűtés jellege: Egyedi
Ingatlan állapota: Épülő
Komfort fokozat: Dupla komfort
Építési év: Új építésű
Tulajdonviszony: Saját
Kilátás: kertre néző
Egész szobák: 5

Egyéb jellemzők

  • Erkély
  • Garázs
  • Lift
  • Pince
  • Tároló

Térkép


Így keressen eladó lakást négy egyszerű lépésben. Csupán 2 perc, kötelezettségek nélkül!

Szűkítse a eladó lakások
listáját
Válassza ki a megfelelő
eladó lakást
Írjon a hirdetőnek
Várjon a visszahívásra