Eladó lakás Dunaharaszti 76 900 000 Ft

Leírás


Dunaharasztin igényes alacsony rezsi költségű lakások eladóak, teremgarázzsal! 

Dunaharaszti központjában, 18 lakásos, igényes, modern megjelenésű társasház MINIMÁLIS rezsi költséggel!

Praktikus elrendezésű lakások több féle méretben, minden korosztály számára.



A vételárban, a lakásokhoz a földszinten kialakított teremgarázsban lévő parkolóhely, és egy kültéri parkoló kizárólagos használata tartozik.

Az épület hűtését és fűtését hőszivattyú biztosítja. A lakásokban padlófűtés és fan-coil rendszer kerül beépítésre.

Kényelmünkről 6 személyes OTIS lift gondoskodik.

Városközponti elhelyezkedés! 

Közelben piac, óvodák, játszó tér, boltok, vonat állomás, újonnan épülő bölcsőde található. Rengeteg zöld terület, parkok a szomszédságban! 

 

Lakáskínálat:

Az első és második emeleten 52, 3 db. 53, 57, 61 és 62 nm alapterületű lakások kerülnek kialakításra.

A harmadik emeleten pedig 65, 73, 74 és 78 nm alapterületű lakások kerülnek kialakításra.

 

1. és 2. emeleti lakások:

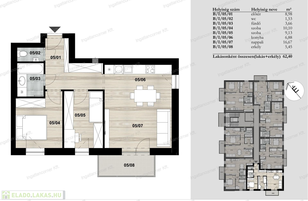
61 nm-es lakás: előtér, konyha-étkező, nappali, közlekedő, wc, fürdő, egy 12 és egy 10 nm-es szoba, valamint 5,5 mm nagyságú erkély

53 nm-es lakás: előtér, konyha, nappali, közlekedő, fürdő, wc, egy 11 és egy 8 nm-es szoba, valamint 5,45 nm nagyságú erkély

52 nm-es lakás: előtér, nappali, konyha, közlekedő, fürdő, wc, egy 9 és egy 10 nm-es szoba, valamint 4 nm nagyságú erkéllyel

53 nm-es lakás: előtér, wc, fürdő, nappali, konyha, egy 10 és egy 9 nm-es szoba, valamint 4 nm nagyságú erkély

57 nm-es lakás: előtér, wc, fürdő, konyha, nappali, egy 10 és egy 9 nm-es szoba, valamint 5,5 nm nagyságú erkély

53 nm-es lakás: előtér, konyha, nappali, fürdő, közlekedő, wc, egy 8 és egy 11 nm-es szoba, valamint 5,5 m2 nagyságú erkély

62 nm-es lakás: előtér, gardrób, konyha, nappali, közlekedő, wc, fürdő, egy 10 és egy 9 nm-es szoba, valamint 5,5 nm nagyságú erkély

 

3. emeleti lakások:

73 nm-es lakás: előszoba, wc, nappali, konyha-étkező, fürdő, zuhanyzó, egy 8, egy 10 és egy 10,5 nm-es szoba, valamit 38 nm nagyságú terasz

74 nm-es lakás: előszoba, konyha-étkező, nappali, fürdő, zuhanyzó és három 10 nm-es szoba, valamint 7 nm nagyságú terasz

78 nm-es lakás: előszoba, wc, zuhanyzó, fürdő, nappali, konyha-étkező, és három 9 nm-es szoba, valamint 30 nm nagyságú terasz

65 nm-es lakás: előszoba, konyha-étkező, nappali, fürdő, wc, egy 9 és egy 10 nm-es szoba, valamint 25 nm nagyságú terasz



Dunaharasztin ez már a 24. ütem, referenciák megtekinthetők bármikor. 25 éves kivitelezési, leinformálható múlttal rendelkező cég. Több 100 átadott lakás és elégedett vevő! 

Legkésőbbi átadás 2025.08.31.  

Jöjjön el tekintse meg élőben!

Várom hívását! Amennyiben nem tudom felvenni a telefont, hamarosan visszahívom! Hétvégén és esténként is nyugodtan kereshet bizalommal!



Független, ingyenes hitel-CSOK ügyintézéssel segítem kedves Ügyfeleimet, igen kedvező ajánlatokkal folyamatosan!



Ha az ingatlan megvásárlásához el szeretné adni a jelenleg meglévő ingatlanját, ebben is nagyon szívesen segítek. 

Az Ingatlancorner kft. igen alacsony közvetítői díjjal, a legmagasabb színvonalon képviseli az Ön érdekeit.



Ellenőrzött partnerként várom megtisztelő bizalmát!

 

Lakás részletei

Ár: 76 900 000 Ft
Méret: 57 négyzetméter
Azonosító: 11522566
Irodai azonosító: 107003998
Építőanyag: Kérdezzen rá a hirdetőtől »
Ingatlan állapota: Átlagos
Komfort fokozat: Összkomfort
Egész szobák: 3

Egyéb jellemzők

  • Lift

Így keressen eladó lakást négy egyszerű lépésben. Csupán 2 perc, kötelezettségek nélkül!

Szűkítse a eladó lakások
listáját
Válassza ki a megfelelő
eladó lakást
Írjon a hirdetőnek
Várjon a visszahívásra