Eladó lakás Debrecen 85 000 000 Ft

Leírás

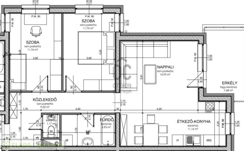
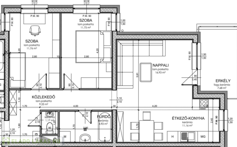
2024-ben épült 1. emeleti energiatakarékos 69 nm-es lakás eladó!

Folyamatosan bővülő és szépülő nyugati részén a Városnak, pár percre autóval elérhető a belváros.

Ingatlan tulajdonságai:

- 2 külön nyíló hálószobás + nagy méretű nappali konyhával
- Fürdő wc-től külön helyiségben
- Hőszivattyús, Plafon fűtés-hűtés révén kedvező fenntartási költségű lakás
- Csendes, zöld övezetre néző 8 nm-es terasza van ÉK fekvéssel
- 17250ft-os közös költsége van
- Kis lakóközösségű, 7 lakás található csak a házban
- 16 nm-es garázzsal együtt eladó melynek irányára 10Mft

Az ingatlanról teljes körű videó felvétel készült, a megtekintése érdekében weboldalunkon keresse a H501484 regisztrációs számon vagy keressen telefonon közvetlenül.

Ha nyugalomra vágyik, ne keressen tovább, megtalálta az új otthonát! Keressen bizalommal!
Rövid időn belül költözhető a lakás, per-teher-igénymentes!

Lakás részletei

Ár: 85 000 000 Ft
Méret: 69 négyzetméter
Azonosító: 11575153
Építőanyag: Tégla
Ingatlan állapota: Kitűnő
Kilátás: kertre néző
Egész szobák: 3

Egyéb jellemzők

  • Erkély
  • Garázs
  • Lift
  • Kertkapcsolat
  • Tároló
  • Kocsibeálló

Így keressen eladó lakást négy egyszerű lépésben. Csupán 2 perc, kötelezettségek nélkül!

Szűkítse a eladó lakások
listáját
Válassza ki a megfelelő
eladó lakást
Írjon a hirdetőnek
Várjon a visszahívásra