Eladó lakás Debrecen 222 000 000 Ft

Leírás

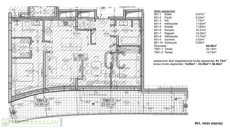
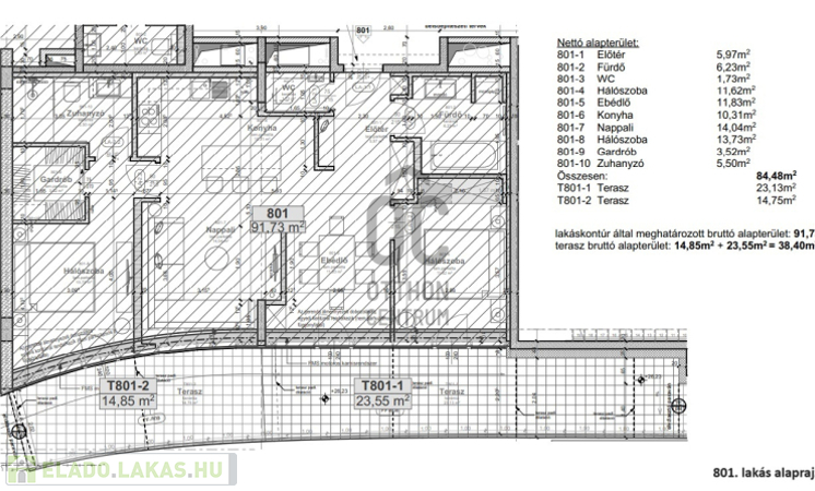
Eladó a város egyik legkülönlegesebb, új építésű társasházában egy VIII. emeleti, br. 92 m²-es, belsőépítész által tervezett, magas presztízsű lakás, 38 m²-es panorámás terasszal, három kijárattal.
A lakás a projekt egyik kiemelt darabja: luxus kivitelezés, modern vonalvezetés, páratlan szolgáltatások.

Főbb paraméterek:
* tágas nappali + szeparált étkező
* dizájn konyha minőségi gépekkel teljesen felszerelve
* 2 külön nyíló hálószoba
* gardrób
* 2 modern fürdőszoba
* hatalmas, 38 m²-es terasz csodás panorámával

A lakók szállodai élményt kapnak, többek között:
- autólift a mélygarázsban
- recepció és beléptetőrendszer
- tetőterasz napozóval, medencével, jacuzzival, szaunával
-házon belüli étterem
-üvegkorlátos, tágas erkélyek minden lakáshoz
-központi padlófűtés + mennyezeti hűtés-fűtés
-egységes függönyök, modern burkolatok, elegáns fürdők

AZ UTOLSÓ EXKLUZÍV LAKÁSOK EGYIKE!

Ha prémium minőségű, szolgáltatásokkal körülvett, modern és értékálló otthont keres a Nagyerdő kapujában – ez az Ön lakása.
Projekt bemutatása

Debrecen belvárosát a Nagyerdővel összekötő sugárúton kerül kivitelezésre a helyi neves tervező házaspár által megálmodott, egyedi megoldású, könnyed vonalvezetésű, igényes, 60 lakásos társasház.
Az otthonos lakások mindegyikére jellemző a fényes terek, kellemes időjárás-független hőmérséklet, csodálatos panoráma.

A tervezésnél elsődleges szempont volt, hogy a lakók úgy érezzék magukat, mintha egy szállodában lennének:
-lift nemcsak a társasházban, hanem a garázsban is (autólift)
-portaszolgálat / recepció, beléptetőrendszer
-tetőteraszon napozó, medence, szauna, jakuzzi, amit a lakók használhatnak
-étterem.

A lakások mindegyike:
-erkélyes
-konyhával és minőségi gépekkel felszerelt
-fürdőszobák ízléses, modern kialakításuak
-egységes függönyökkel ellátottak
-padlófűtés és mennyezet fűtés-hűtésű.

A budapesti sikeres beruházó hajdúsági gyökerekkel rendelkezik. Büszkeség számukra nemcsak Debrecen legkülönlegesebb lakóingatlanát fejleszteni, de mind a beruházást, mind az üzemeltetést cégcsoporton belül megvalósítani. Ezáltal vevőközpontú vásárlási folyamatot alakítottak ki először a régióban, így nem Ön finanszírozza a beruházást, hanem a beruházó és Önnek semmilyen anyagi kockázata nincs!

Ne késlekedjen, legyen Ön is lakástulajdonos ebben a csúcskategóriás komplexumban!

Lakás részletei

Ár: 222 000 000 Ft
Méret: 92 négyzetméter
Azonosító: 11408294
Építőanyag: Tégla
Ingatlan állapota: Kitűnő
Kilátás: utcai
Egész szobák: 3

Egyéb jellemzők

  • Erkély
  • Garázs
  • Lift
  • Kertkapcsolat
  • Tároló
  • Kocsibeálló

Így keressen eladó lakást négy egyszerű lépésben. Csupán 2 perc, kötelezettségek nélkül!

Szűkítse a eladó lakások
listáját
Válassza ki a megfelelő
eladó lakást
Írjon a hirdetőnek
Várjon a visszahívásra