Eladó lakás Budapest XXIII. ker 77 000 000 Ft

Leírás

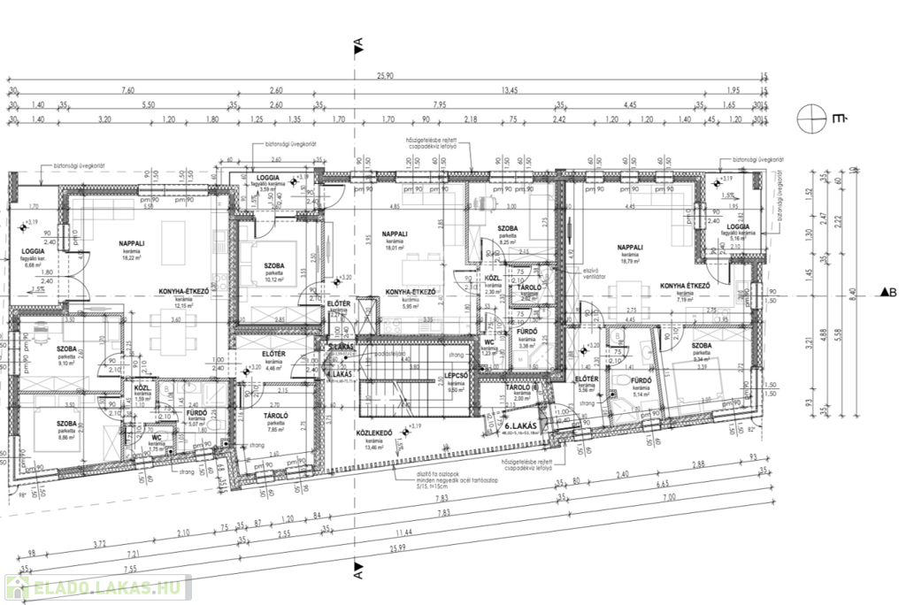
Eladó egy új építésű, összesen 6 lakásból álló társasház valamennyi lakása.

Az ingatlan Soroksár új kertvárosi lakóparkjában, csendes, családbarát környezetben található, ahol a nyugodt életvitel és a jó városi elérhetőség harmonikusan találkozik.

A város zajától távol, mégis kiváló infrastruktúrával rendelkezik: üzletek, szolgáltatások és tömegközlekedés könnyen elérhetők.

A Soroksári kiserdő és a Duna közelsége különleges, természetközeli hangulatot biztosít, amely valódi otthonérzetet nyújt a leendő tulajdonosok számára.

1. lakás:
- Földszint,
- 75 nm,
- 3 szoba,
- Amerikai konyhás nappali,
- 1 Fürdő,
- 1Wc,
- Terasz 5 nm.
- 108.750.000 Ft

2. lakás:
- Földszint,
- 45 nm,
- 1 szoba,
- Amerikai konyhás nappali,
- 14,5 nm Terasz,
- Fürdő-wc,
- Kamra.
- 65.000.000 Ft

3. lakás:
- Földszint,
- 48 nm,
- 1 szoba,
- Amerikai konyhás nappali,
- 5nm terasz,
- Fürdő-wc.
- 69.000.000 Ft

4. lakás:
- Emelet,
- 69 nm,
- 3 szoba,
- Amerikai konyhás nappali,
- 1 wc,
- 1 Fürdő,
- Erkély 7nm.
- 100.000.000 Ft

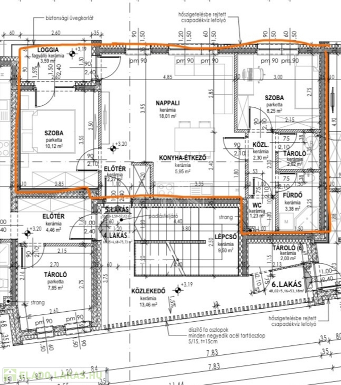
A meghirdetett lakás:
5. lakás:
- Emelet,
- 53,5 nm,
- 2 szoba,
- Amerikai konyhás nappali,
- Fürdő-Wc,
- Kamra,
- Erkély 3,7nm.
- 77.000.000 Ft

6. lakás:
- Emelet,
- 48 nm,
- 1 szoba,
- Amerikai konyhás nappali,
- Fürdő-Wc,
- Kamra,
- Erkély 5nm.
- 69.000.000 Ft

Minden lakáshoz tartozik egy autóbeálló a ház előtt.
Földszinti lakásokhoz kicsi kert is tartozik.

Az elkészült lakások lakhatási engedéllyel kerülnek átadásra!!!
Tervezett átadás: 2026. év vége!

Ütemezés: 20% foglaló, a fennmaradó összeg megbeszélés alapján.

Az ingatlan 3%-os Otthon Start hitellel is megvásárolható.


Irodánk 30 éves szakmai tapasztalattal áll ügyfelei rendelkezésére!
Bankfüggetlen hitelcentrummal, jogi hátérrel segítjük ingatlanvásárlását!
Várom szíves megkeresését, hívjon bizalommal!

Lakás részletei

Ár: 77 000 000 Ft
Méret: 53 négyzetméter
Azonosító: 11594775
Irodai azonosító: 392019
Cím:
Emelet: 1. emelet
Építőanyag: Tégla
Fűtés jellege: Hőszivattyú
Ingatlan állapota: Kitűnő
Komfort fokozat: Összkomfort
Építési év: Új építésű
Tulajdonviszony: Saját
Kilátás: udvari
Egész szobák: 3

Egyéb jellemzők

  • Erkély
  • Garázs
  • Lift
  • Pince
  • Tároló

Térkép


Így keressen eladó lakást négy egyszerű lépésben. Csupán 2 perc, kötelezettségek nélkül!

Szűkítse a eladó lakások
listáját
Válassza ki a megfelelő
eladó lakást
Írjon a hirdetőnek
Várjon a visszahívásra