Eladó lakás Budapest XXI. ker, Csepel-Kertváros, 110 000 000 Ft

Leírás

Penthouse életérzés Csepel zöldövezetében – villaépületben, dupla garázzsal!

Budapest XXI. kerületének egyik legszebb főutcájában, a Széchenyi István utcában, a Rákóczi
kert szomszédságában, eladó egy exkluzív, tetőtéri penthouse lakás egy mindössze 6
lakásos villaépületben.

A 3 égtáj felé nyitott, világos, kertre néző, dupla komfortos lakás nemcsak
elhelyezkedésével, hanem kiemelkedő műszaki tartalmával is különleges.

Főbb jellemzők:
• Frissen festett, újszerű állapotban lévő, azonnal költözhető otthon
• 3 égtájra tájolt, napfényes helyiségek
• 2 gépjármű részére teremgarázs beálló + saját tároló
• Per- és tehermentes tulajdon
• Videó kaputelefon, riasztó és kamerarendszer
• Extra kényelmes, nagyméretű gépkocsibeállók
• Méretre gyártott beépített bútorok, mennyezetig épített gardrób

Műszaki felszereltség – minden igényt kielégítő felső kategória:
• DAIKIN légcsatornás klímaberendezés mennyezeti befúvókkal
• VAILLANT gázcirkó + külön ágon szabályozható padló- és radiátorfűtés
• BOSCH, LG és BLANCO gépekkel szerelt beépített konyha
• XXL-es akril hidromasszázs kád, RAVAK zuhanykabin
• GROHE, GEBERIT szaniterek
• Üvegszövet tapétázás – repedésmentes falfelületek
• Házimozi rendszer előkészítve: hangfal-, projektor- és vetítővászon kábelezés, teljes
black-out sötétítés
• SOMFY motoros napárnyékoló, SPECTRA riasztórendszer
• Több mint 60 db elektromos dugalj
Zöld környezet, tökéletes elhelyezkedés:
A Ráckevei Dunaág, a közeli parkok és zöldterületek kiváló lehetőséget nyújtanak a
kikapcsolódásra és sportolásra.
Iskola, óvoda, posta, gyógyszertár, orvosi rendelő, boltok mind elérhetők pár perc alatt.

Kiváló közlekedés:
• Tömegközlekedés: 151, 152, 71, H7
• Csepel központja és az M0-s autóút könnyedén megközelíthető
• Rövid idő alatt elérhető a belváros és a környező kerületek is

Ez az ingatlan ideális választás azoknak, akik exkluzív, nyugodt környezetben, mégis kiváló
közlekedéssel és szolgáltatásokkal ellátott helyen keresnek különleges otthont.

Ne maradjon le erről a lehetőségről – kérjen bővebb információt vagy egyeztessen
megtekintést még ma!

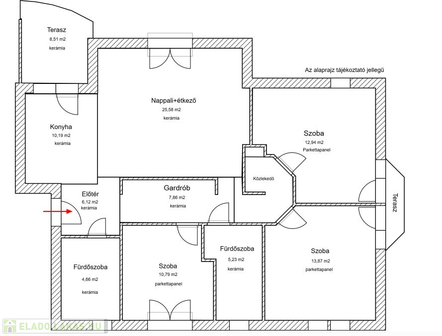
Lakás részletei

Ár: 110 000 000 Ft
Méret: 102 négyzetméter
Azonosító: 11522002
Városrész: Csepel-Kertváros
Emelet: 3. emelet
Építőanyag: Tégla
Fűtés jellege: Cirkó
Ingatlan állapota: Kitűnő
Komfort fokozat: Dupla komfort
Elhelyezkedés: Társasház
Bútorozott: Nem bútorozott
Kilátás: kertre néző
Egész szobák: 4
Fél szobák: 1
Nappalik: 1

Egyéb jellemzők

  • Erkély
  • Garázs
  • Lift

Térkép


Így keressen eladó lakást négy egyszerű lépésben. Csupán 2 perc, kötelezettségek nélkül!

Szűkítse a eladó lakások
listáját
Válassza ki a megfelelő
eladó lakást
Írjon a hirdetőnek
Várjon a visszahívásra