Eladó lakás Budapest XX. ker 74 900 000 Ft

Leírás

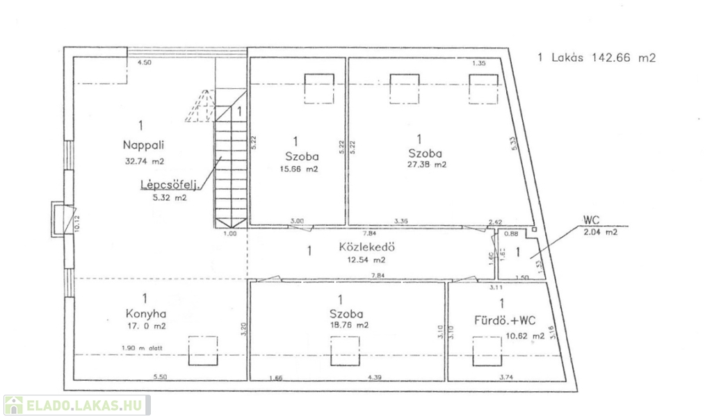
Eladó Pesterzsébet frekventált részén kiváló infrastruktúrával és felszereltséggel rendelkező, irodának és lakóingatlannak egyaránt alkalmas, tehermentes, hangulatos, 172 nm-es nettó területtel rendelkező ingatlan, mely 526nm-es telken található, saját parkolóval.

Kiváló tömegközlekedéssel megközelíthető, közvetlen a bejáratnál található a busz és villamos megálló.

Elhelyezkedéséből adódóan remek lehetőséget kínál mindazok számára akik nagyobb lakást szeretnének, önálló udvarral.

Az első emeleti, napfényes ingatlanrész a saját használatú belső udvaron keresztül közelíthető meg, ahol 6-7 gépjármű parkolása megoldható.

Az ingatlan egy 50 nm-es, egy 19 nm-es, egy 17 nm-es, egy 28 nm-es helységekkel, plusz egy 19 nm-es raktárat valamint egy külön fürdőszobát és wc-t tartalmaz.

Jelenleg lakásként van használva otthonos kialakítással.

A fűtése kondenzációs gázkazán, mely egyben a melegvíz-szolgáltatást is nyújtja napkollektoros rendszer rásegítésével.

Lakás részletei

Ár: 74 900 000 Ft
Méret: 172 négyzetméter
Azonosító: 11499067
Irodai azonosító: 379705
Cím: Nagysándor József utca
Emelet: 1. emelet
Építőanyag: Tégla
Fűtés jellege: Cirkó
Ingatlan állapota:
Komfort fokozat: Összkomfort
Építési év: 21-50 éves
Tulajdonviszony: Saját
Kilátás: udvari
Egész szobák: 4

Egyéb jellemzők

  • Erkély
  • Garázs
  • Lift
  • Pince
  • Tároló

Térkép


Így keressen eladó lakást négy egyszerű lépésben. Csupán 2 perc, kötelezettségek nélkül!

Szűkítse a eladó lakások
listáját
Válassza ki a megfelelő
eladó lakást
Írjon a hirdetőnek
Várjon a visszahívásra