Eladó lakás Budapest XV. ker 79 350 000 Ft

Leírás

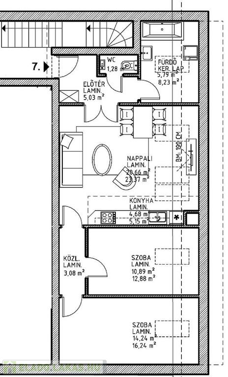
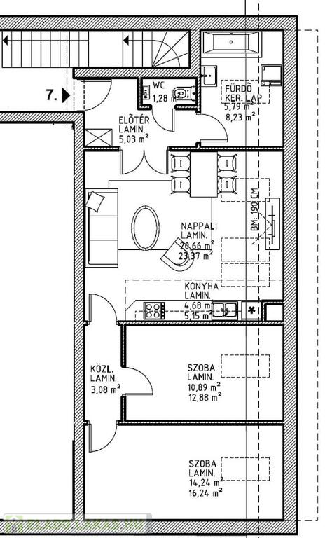
XV. KERÜLETBEN: FREKVENTÁLT RÉSZEN, ELADÓ ÚJ ÉPÍTÉSŰ, 66 M2, AMERIKAI KONYHÁS NAPPALIS, 2 SZOBÁS, TETŐTÉRI TÁRSASHÁZI TÉGLALAKÁS.



A LAKÁS JELLEMZŐI:

A lakás várható átadási határideje 2027. A társasház 7 lakásos lesz, 3 szintes, 30-as porotherm téglából épül, amelyet egy 10 cm-es grafitos szigeteléssel is ellátnak majd.

A lakásban tágas amerikai konyhás nappali, 2 szoba, fürdőszoba, előszoba, gardrób és mellékhelyiség kerül kialakításra.

A nyílászárók 6 légkamrás, 3 rétegű hőszigetelt ablakok lesznek. A fűtést kondenzációs kazán fogja biztosítani, a hideg burkolatok alatt padlófűtés kerül kialakításra, a szobákban pedig lapradiátorokat szerelnek fel és 1 hűtő-fűtő klímát.

Az ár tartalmazza a burkolatok, szerelvények és szaniterek beépítését, az anyag árat nem.

Igény esetén extra költséggel kérhető: elektromos redőny, kamera, riasztó, konyhabútor, beépített szekrények.

Lehetőség van plusz tároló (2.000.000 Ft/db), illetve udvari autóbeálló (2.500.000 Ft/db.) vásárlásához.

Referencia ingatlanok megtekintése is lehetséges.



FINANSZÍROZÁS:

Az ingatlan TEHERMENTES lesz, hitelre is megvásárolható. Bankfüggetlen tanácsadóink, az ország összes pénzintézete közül gyorsan és gördülékenyen találja meg az Önnek legmegfelelőbb konstrukciót, egyedi kedvezményekkel. A hitel közvetítés díjmentes.

Várjuk hívását munkanapokon 09:00-18:00 között.

A hirdetésben szereplő adatok tájékoztató jellegűek.

Amennyiben eladná saját ingatlanát, több mint 10 éve működő, kifejezetten a kerületre szakosodott irodánktól, INGYENES ÉRTÉKBECSLÉST kérhet.

Lakás részletei

Ár: 79 350 000 Ft
Méret: 66 négyzetméter
Azonosító: 11586922
Irodai azonosító: 24188
Emelet: 2. emelet
Építőanyag: Kérdezzen rá a hirdetőtől »
Ingatlan állapota: Átlagos
Egész szobák: 3

Így keressen eladó lakást négy egyszerű lépésben. Csupán 2 perc, kötelezettségek nélkül!

Szűkítse a eladó lakások
listáját
Válassza ki a megfelelő
eladó lakást
Írjon a hirdetőnek
Várjon a visszahívásra