Eladó lakás Budapest XV. ker 51 600 000 Ft

Leírás

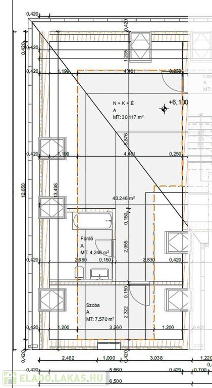
XV. KERÜLETBEN: ELADÓ EGY ÚJ ÉPÍTÉSŰ, 43 M2, AMERIKAI KONYHÁS NAPPALIS, 1 SZOBÁS, TETŐTÉRI TÁRSASHÁZI TÉGLALAKÁS.

VÁRHATÓ ÁTADÁSI IDŐ 2026 VÉGE!!



A LAKÁS JELLEMZŐI:

A lakás várható átadási határideje 2026 év vége. A társasház 8 lakásos lesz, 3 szintes, 30-as porotherm téglából épül, amelyet egy 12 cm-es szigeteléssel is ellátnak majd. A tetőszerkezet Terrán Zenit betoncserepet kap, a bádogos szerkezet pedig Lindab lemezből fog készülni

A lakásban tágas étkezős amerikai konyhás nappali, 1 szoba, fürdőszoba kerül kialakításra.

A nyílászárók 3 rétegű hőszigetelt ablakok lesznek, alumínium redőnnyel és szúnyoghálóval ellátva. Házközponti fűtés lesz (padlófűtés), amit hőszivattyú lát el, a hűtés-fűtés és használati meleg víz előállítása lakásonként központi meleg víz készítővel történik majd. Az ár tartalmazza a burkolatokat, 6.000-8.000 Ft/ nm ár között szabadon választhatóak és a szanitereket.

2 darab parkolóhely kerül kialakításra, melynek ára 1.500.000 ft/darab, igény esetén megvásárolható.





FINANSZÍROZÁS:

Az ingatlan TEHERMENTES lesz, hitelre is megvásárolható, az Otthon Start 3% hitel NEM vehető igénybe a lakásra.

Bankfüggetlen tanácsadóink, az ország összes pénzintézete közül gyorsan és gördülékenyen találja meg az Önnek legmegfelelőbb konstrukciót, egyedi kedvezményekkel. A hitel közvetítés díjmentes.

Várjuk hívását munkanapokon 09:00-18:00 között.

A hirdetésben szereplő adatok tájékoztató jellegűek.

Amennyiben eladná saját ingatlanát, több mint 10 éve működő, kifejezetten a kerületre szakosodott irodánktól, INGYENES ÉRTÉKBECSLÉST kérhet.

Lakás részletei

Ár: 51 600 000 Ft
Méret: 43 négyzetméter
Azonosító: 11566641
Irodai azonosító: 23264
Emelet: 2. emelet
Építőanyag: Kérdezzen rá a hirdetőtől »
Ingatlan állapota: Átlagos
Egész szobák: 2

Így keressen eladó lakást négy egyszerű lépésben. Csupán 2 perc, kötelezettségek nélkül!

Szűkítse a eladó lakások
listáját
Válassza ki a megfelelő
eladó lakást
Írjon a hirdetőnek
Várjon a visszahívásra