Eladó lakás Budapest XIX. ker 125 000 000 Ft

Leírás

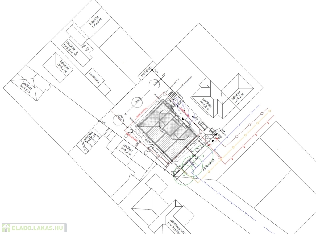
A XIX. kerület kedvelt, kertvárosi részén,csendes zsákutcában, a Viola utcában, 4 lakásos társasházban, kulcsrakészen kínálunk eladásra egy modern, társasházi alapító okirattal külön helyrajzi számon nyilvántartott 1. emeleti lakást.

Főbb adatok:

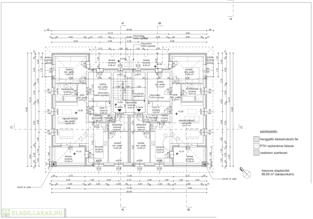
-Lakás alapterület: 89,69 m² + erkélyek 9,09 és 10,39 m²
-Elosztás: előszoba, nappali + étkező + konyha, 3 hálószoba, fürdőszoba, kamra, háztartási helyiség

Műszaki tartalom:

Szerkezet és szigetelés

-30 cm Porotherm P30 N+F tégla falazat
-Földszinten E-gerendás betonfödém, az emeleten fa födém
-Padlóban 10 cm lépésálló hőszigetelés, az emeleten 2 cm hanggátló lépésálló szigetelés
-Homlokzaton 15 cm EPS hőszigetelés
-Felső födémen 30 cm ásványgyapot hőszigetelés


Energiatakarékos gépészet

-Monoblokkos hőszivattyú, padlófűtéssel
-Klíma
-H tarifás villanyóra

Kényelem és biztonság

-Elektromos, szigetelt alumínium redőnyök
-Riasztórendszer mozgásérzékelőkkel + IP kamerarendszer
-Elektromos kapu és garázsajtó


Választható belső kialakítás

-10.000 Ft/m²-ig választható hideg- és melegburkolatok
-90.000 Ft értékű beltéri ajtók
-250.000.- Ft értékű kád vagy zuhanyzó
-Geberit falsík mögötti WC rendszer

Elhelyezkedés:

-Csendes, kertvárosi környezet
-Rendezett utcafront, aszfaltozott út
-Kiváló közlekedés
-Bevásárlási lehetőségek, iskola, óvoda gyalogos közelségben

Kérésre szívesen küldünk komplett tervdokumentációt, műszaki leírást.

INGYENES hitel tanácsadás, CSOK Plusz ügyintézés!
BANKFÜGGETLEN hitelcentrumunk az összes elérhető bank és hitelintézet ajánlatát versenyezteti az Ön kedvéért, ráadásul DÍJMENTESEN.

- Egyedi, bankfiókban nem elérhető kamat- és díjkedvezmények
- Hitelképesség vizsgálat
- Idő, energia és pénz megtakarítás
- Teljes hivatali ügyintézés

Amennyiben hirdetésem felkeltette az érdeklődését vagy egyéb információra van szüksége hívjon bizalommal!

Lakás részletei

Ár: 125 000 000 Ft
Méret: 100 négyzetméter
Azonosító: 11567465
Irodai azonosító: 387698
Cím: Viola utca
Emelet: 1. emelet
Építőanyag: Tégla
Fűtés jellege: Hőszivattyú
Ingatlan állapota: Kitűnő
Komfort fokozat: Összkomfort
Építési év: Új építésű
Tulajdonviszony: Saját
Kilátás: udvari
Egész szobák: 4

Egyéb jellemzők

  • Erkély
  • Garázs
  • Lift
  • Pince
  • Tároló

Térkép


Így keressen eladó lakást négy egyszerű lépésben. Csupán 2 perc, kötelezettségek nélkül!

Szűkítse a eladó lakások
listáját
Válassza ki a megfelelő
eladó lakást
Írjon a hirdetőnek
Várjon a visszahívásra