Eladó lakás Budapest XIV. ker 117 900 000 Ft

Leírás

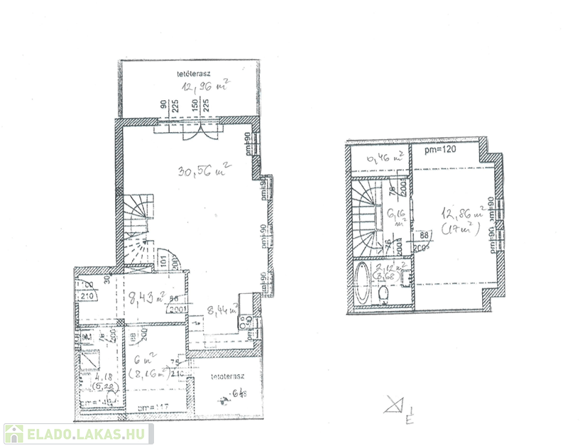
A XIV. kerületben, Alsórákos csendes, kertvárosi részén, a Szilágysomlyó utcában kínálunk megvételre egy 2001-ben épült, 9 lakásos társasházban található, nappali + 2 hálószobás, belső kétszintes, duplakomfortos, dupla teraszos lakást.

A nettó 79 m²-es (1,9 m alatti részekkel együtt 91 m²) lakáshoz összesen 20 m² terasz tartozik (13 m² + 6,5 m²). Világos, napos, csendes otthon, egyedi cirko fűtéssel és problémamentes lakóközösséggel. A házhoz ápolt, tágas közös kert tartozik.

Elrendezés

Alsó szint:

Egyedileg tervezett amerikai konyhás nappali

Nagy, déli fekvésű, étkezésre is alkalmas terasz

Kertre néző háló/dolgozószoba vagy vendégszoba, saját zuhanyzós fürdőszobával

Előszoba jó tárolási lehetőségekkel

Második, kisebb terasz


Emelet (tetőtér):

Egyedi falépcső vezet fel

Jelenleg egybenyitott hálótér (eredetileg 2 külön szoba, visszaalakítható)

Gardrób

Kádas fürdőszoba

A lakás kiváló választás otthoni munkavégzéshez vagy akár két kisgyermekes család számára is.

Az ingatlan megkímélt, folyamatosan karbantartott, műszaki és esztétikai állapota kiváló.

MŰSZAKI ADATOK

Alapterület: 79 m² (bruttó 91 m²)
Teraszok: összesen 20 m² (13 m² + 6,5 m²)
Szobák száma: nappali + 2 háló (jelenleg 2 háló, visszaalakítható 3-á)
Fürdőszobák: 2 (zuhanyzós + kádas)
Fűtés: egyedi gázcirkó
Építés éve: 2001
Társasház: 9 lakásos
Homlokzat: szigetelt
Tető: Bramac betoncserép
Állapot: kiváló, karbantartott
Közös kert: gondozott, tágas

Parkolás: külön helyrajzi számon lévő teremgarázs
Tároló: 4 m²

A garázs és a tároló ára: +10 millió Ft.

BEFEKTETÉSI LEHETŐSÉG

A belső kétszintes kialakítás, a 3 szobás lehetőség, a dupla komfort és a két nagy terasz kifejezetten vonzóvá teszi családok és bérlők számára egyaránt.

A tetőtéri rész visszaalakítható két külön hálószobává, így az alaprajz rugalmasan igazítható az igényekhez.

A kertvárosi, csendes környezet és a kiváló állapot hosszú távon is értékálló befektetést jelent.

KÖRNYÉK ÉS KÖZLEKEDÉS

Alsórákos Zugló egyik legkedveltebb, kertvárosi része, nyugodt, zöld környezetben.

A környéken bevásárlási lehetőségek, szolgáltatások, iskolák és óvodák könnyen elérhetők.

Tömegközlekedéssel és autóval is jól megközelíthető, a belváros kényelmesen elérhető.

Lakás részletei

Ár: 117 900 000 Ft
Méret: 89 négyzetméter
Azonosító: 11602257
Irodai azonosító: 349735
Emelet: 2. emelet
Építőanyag: Tégla
Fűtés jellege: Cirkó
Ingatlan állapota:
Komfort fokozat: Dupla komfort
Egész szobák: 2
Fél szobák: 1

Egyéb jellemzők

  • Erkély
  • Garázs
  • Lift
  • Kertkapcsolat

Így keressen eladó lakást négy egyszerű lépésben. Csupán 2 perc, kötelezettségek nélkül!

Szűkítse a eladó lakások
listáját
Válassza ki a megfelelő
eladó lakást
Írjon a hirdetőnek
Várjon a visszahívásra