Eladó lakás Budapest XIII. ker 77 900 000 Ft

Leírás

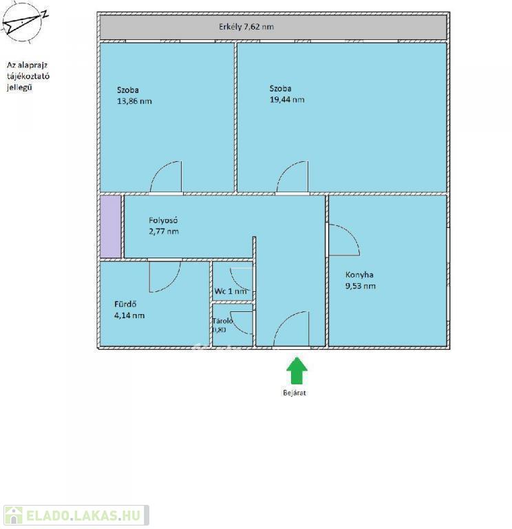
ELADÓ XIII. KERÜLETI LAKÁS - NAGY ERKÉLY, ZÁRT LAKÓPARK, PARKOLÓ!!!

Ha már unod a kompromisszumokat és szeretnél egy zárt, biztonságos lakóparkban élni, rád vár ez a 60 nm-es világos, frissen festett, azonnal költözhető lakás.

Gyalog és autóval is kényelmes a bejutás, a bejáratot elektromos kapu őrzi.

Miért fogod imádni?
- 60 nm jelenleg két szobás, de könnyes három szobássá alakítható
- Óriási erkély- reggeli kávé, baráti fröccsözés
- Vadiúj sarokkád- hogy a fürdőszoba wellness legyen
- Műanyag nyílászárók, nagy ablakok- jó hőszigetelés
- Eredeti fa parketta, frissen felújítva - karakter és elegancia egyben
- 2019-ben cserélt kondenzációs gázkazán - új, modern és takarékos
- Zárt saját tároló - bicikli, bőrönd, karácsonyi díszek
- Felszíni kocsibeálló - nem kell többé parkolóhelyet vadászni, ÉS IGEN, BENNE VAN AZ ÁRBAN!!!!
- Tehermentes, 1/1 tulajdon, üres, azonnal költözhető

Várom hívását a hét minden napján 9-20 h között, jöjjön és nézzük meg együtt a leendő otthonát.

Ügyfeleink részére teljes banki és jogi háttérrel állunk rendelkezésre.

Lakás részletei

Ár: 77 900 000 Ft
Méret: 60 négyzetméter
Azonosító: 11581289
Irodai azonosító: M317680-5091318
Emelet: 2. emelet
Építőanyag: Tégla
Fűtés jellege: Cirkó
Ingatlan állapota:
Komfort fokozat: Összkomfort
Építési év: 50 évesnél régebbi
Kilátás: udvari
Egész szobák: 2

Egyéb jellemzők

  • Erkély
  • Kocsibeálló

Térkép


Így keressen eladó lakást négy egyszerű lépésben. Csupán 2 perc, kötelezettségek nélkül!

Szűkítse a eladó lakások
listáját
Válassza ki a megfelelő
eladó lakást
Írjon a hirdetőnek
Várjon a visszahívásra